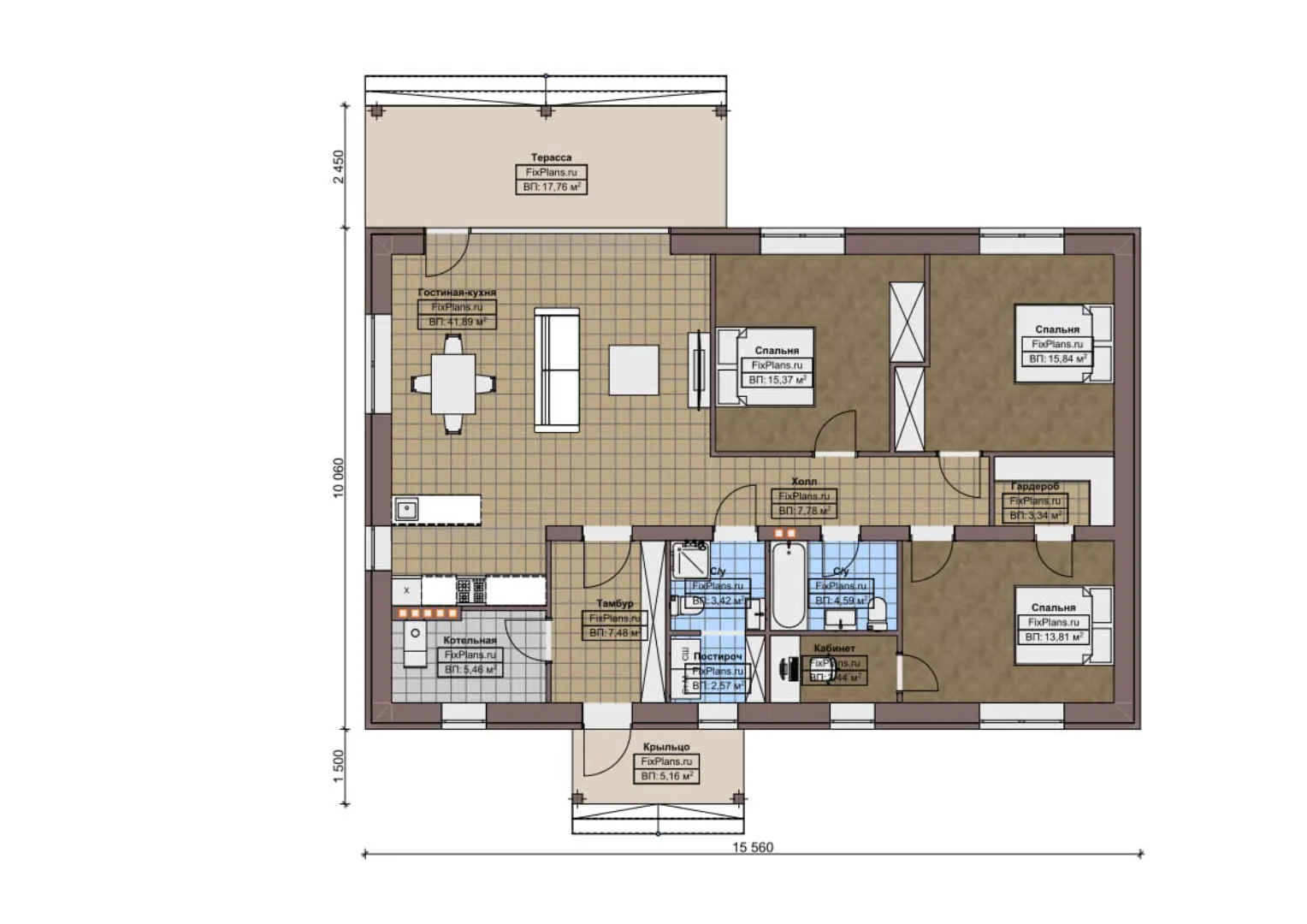
F-0008 - План одноэтажного дома 11 на 16, площадью 130 м² с террасой и 3 спальнями
| Параметр проекта | Значение |
|---|---|
| Длина | 10.65 м |
| Ширина | 15.44 м |
| Этажность | 1 |
| Общая площадь | 129.06 м² |
| Площадь застройки | 164.44 м² |
| Кол-во спален | 3 |
| Количество ванных комнат | 3 |
| Стиль проекта | Европейский |
| Материал стен | Газобетон |
| Тип кровли | Скатная кровля |
| Наличие цокольного этажа | Нет |
| Наличие гаража | Нет |
| Машиноместа | - |
| Чердак | Да |
| Терраса | Да |
| Балкон | Нет |
| Второй свет | - |
| Сауна | Нет |
Представляем вам проект одноэтажного дома площадью 130 м² с террасой и тремя спальнями. Этот дом станет идеальным решением для тех, кто ценит простор и функциональность. Общая площадь дома составляет 129,06 м², а площадь застройки — 164,44 м². Это позволяет максимально эффективно использовать пространство и создать комфортное жильё.
Европейский стиль и практичность
Проект выполнен в европейском стиле, который отличается своей лаконичностью и функциональностью. Стены из газобетона обеспечивают надёжность и долговечность конструкции. Скатная кровля придаёт дому современный вид и защищает от непогоды. Наличие чердака добавляет дополнительные возможности для хранения или организации пространства.
Три спальни и три ванные комнаты
В доме предусмотрено три спальни, что идеально подходит для больших семей или тех, кто любит принимать гостей. Три ванные комнаты обеспечивают комфорт и удобство для всех членов семьи. Отсутствие второго света позволяет сохранить тепло в доме и снизить расходы на отопление.
Терраса для отдыха
Наличие террасы делает этот дом ещё более привлекательным. Вы можете использовать террасу для отдыха, проведения семейных вечеров или приёма гостей. Терраса станет прекрасным местом для релаксации после рабочего дня или для утреннего кофе под лучами солнца.
Не упустите возможность создать свой идеальный дом! Оставьте заявку на сайте и получите подробную информацию о проекте одноэтажного дома 11 на 16.