F-0170 - Планы двухэтажного дома 11 на 13, площадью 240 м² с террасой и 2 спальнями
| Параметр проекта | Значение |
|---|---|
| Длина | 11.00 м |
| Ширина | 13.00 м |
| Этажность | 2 |
| Общая площадь | 232.97 м² |
| Площадь застройки | 143.00 м² |
| Кол-во спален | 2 |
| Количество ванных комнат | 1 |
| Стиль проекта | Европейский |
| Материал стен | Газобетон |
| Тип кровли | Скатная кровля |
| Наличие цокольного этажа | Нет |
| Наличие гаража | Нет |
| Машиноместа | - |
| Чердак | Да |
| Терраса | Да |
| Балкон | Нет |
| Второй свет | - |
| Сауна | Нет |
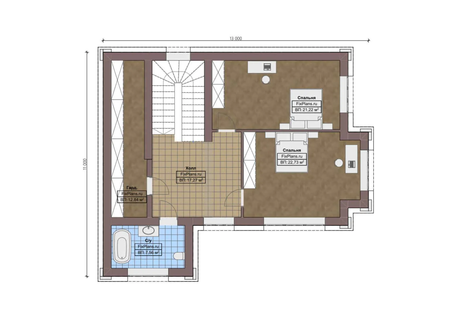
Проект F-0170 представляет собой двухэтажный дом площадью 240 м² с террасой. Это отличное решение для тех, кто ищет комфортное жильё в европейском стиле. Благодаря продуманной планировке и грамотному использованию пространства, каждый квадратный метр этого дома будет максимально функциональным.
Основные характеристики проекта:
- Длина: 11 м;
- Ширина: 13 м;
- Этажность: 2 этажа;
- Общая площадь: 232,97 м²;
- Площадь застройки: 143 м²;
- Количество спален: 2;
- Наличие террасы: да.
Преимущества проекта:
Проект F-0170 отличается продуманной планировкой и функциональностью каждого квадратного метра. Благодаря своей компактности и эффективности использования пространства, этот дом станет идеальным выбором для тех, кто ценит комфорт и уют. Двухэтажный формат позволяет оптимально распределить жилые зоны, а терраса добавляет дополнительное пространство для отдыха на свежем воздухе.
Европейский стиль проекта придаёт дому современный и элегантный вид, который будет радовать вас каждый день. Газобетонные стены обеспечивают надёжность и долговечность конструкции, а скатная кровля — стильный внешний вид. Наличие чердака расширяет возможности для хранения или организации дополнительных зон в доме.
Не упустите возможность стать обладателем уютного и функционального дома по проекту F-0170!