F-0530 - Планы двухэтажного дома 12 на 13, площадью 220 м² с террасой, гаражом на 1 машину и 4 спальнями
| Параметр проекта | Значение |
|---|---|
| Длина | 11.90 м |
| Ширина | 12.60 м |
| Этажность | 2 |
| Общая площадь | 211.17 м² |
| Площадь застройки | 149.94 м² |
| Кол-во спален | 4 |
| Количество ванных комнат | 2 |
| Стиль проекта | Европейский |
| Материал стен | Газобетон |
| Тип кровли | Скатная кровля |
| Наличие цокольного этажа | Нет |
| Наличие гаража | Да |
| Машиноместа | на 1 машину |
| Чердак | Да |
| Терраса | Да |
| Балкон | Нет |
| Второй свет | - |
| Сауна | Нет |
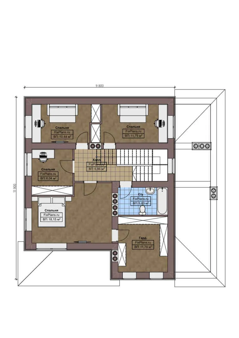
Проект F-0530 представляет собой двухэтажный дом площадью 220 м² с продуманной планировкой. Благодаря своим размерам, этот проект станет отличным выбором для большой семьи или тех, кто ценит простор и комфорт. Длина дома составляет 11,90 м, а ширина — 12,60 м.
Европейский стиль и практичность
Стиль проекта — европейский, что придаёт дому современный и элегантный вид. Стены выполнены из газобетона, обеспечивая надёжность и долговечность конструкции. Скатная кровля добавляет завершённости образу дома. Отсутствие цокольного этажа позволяет использовать пространство более рационально.
Комфорт и удобство
В доме предусмотрено 4 спальни и 2 ванные комнаты, что обеспечивает комфорт для всех членов семьи. Наличие гаража на одно машиноместо делает проект ещё более практичным и удобным в использовании. Терраса станет прекрасным местом для отдыха и семейных встреч на свежем воздухе.
Дополнительные возможности
Чердак предоставляет дополнительные возможности для хранения или организации пространства. Отсутствие балкона компенсируется наличием террасы, которая предлагает больше возможностей для использования открытого пространства вокруг дома. Этот проект сочетает в себе практичность, комфорт и европейский стиль, делая его идеальным выбором для современного жилья.