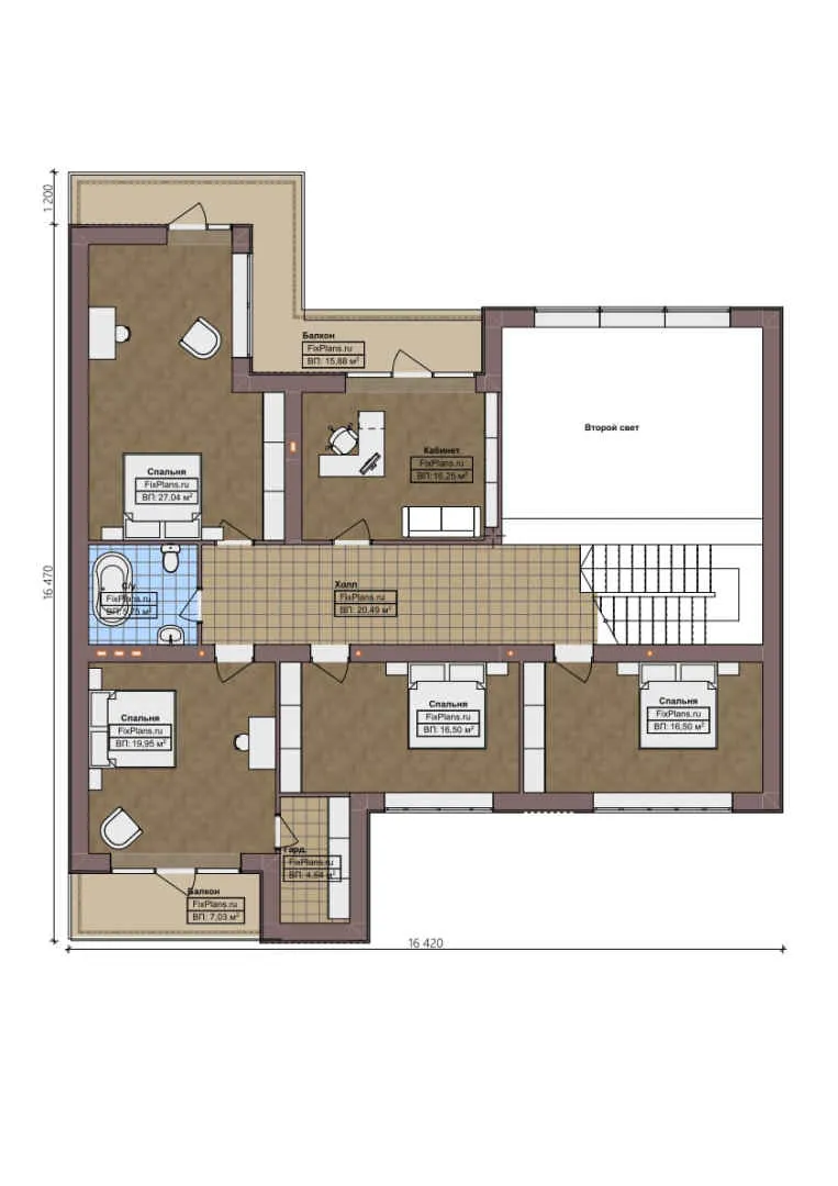
F-0971 - Планы двухэтажного дома 17 на 18, площадью 400 м² с террасой, балконом, гаражом на 2 машины и 4 спальнями
| Параметр проекта | Значение |
|---|---|
| Длина | 16.42 м |
| Ширина | 17.72 м |
| Этажность | 2 |
| Общая площадь | 396.81 м² |
| Площадь застройки | 290.96 м² |
| Кол-во спален | 4 |
| Количество ванных комнат | 3 |
| Стиль проекта | Современный |
| Материал стен | Газобетон |
| Тип кровли | Плоская кровля |
| Наличие цокольного этажа | Нет |
| Наличие гаража | Да |
| Машиноместа | на 2 машины |
| Чердак | Нет |
| Терраса | Да |
| Балкон | Да |
| Второй свет | - |
| Сауна | Нет |
Проект двухэтажного дома площадью 400 м² предлагает вам простор и комфорт, которые идеально подойдут для большой семьи. С четырьмя спальнями и тремя ванными комнатами этот дом обеспечивает достаточно места для всех членов семьи.
Функциональность и практичность
Современный стиль проекта гармонично сочетается с функциональностью. Наличие террасы и балкона позволяет наслаждаться свежим воздухом в любое время года. Гараж на две машины обеспечит удобное хранение вашего транспорта, освобождая дополнительное пространство во дворе.
Практичность планировки
Планировка дома продумана до мелочей. Отсутствие чердака и наличие плоской кровли упрощают обслуживание здания. При этом площадь застройки составляет 290,96 м², что позволяет эффективно использовать каждый квадратный метр пространства.
Преимущества проекта
Этот проект отличается продуманной планировкой и высоким качеством исполнения. Газобетонные стены обеспечивают надёжность и долговечность конструкции. Все эти характеристики делают данный проект идеальным выбором для тех, кто ценит комфорт, практичность и качество жизни.
Не упустите возможность воплотить свои мечты в реальность! Оставьте заявку на сайте и начните строить дом своей мечты уже сегодня.