F-10124 - Планы дома с мансардой 9 на 12, площадью 140 м² с террасой, балконом и 4 спальнями
| Параметр проекта | Значение |
|---|---|
| Длина | 8.40 м |
| Ширина | 11.62 м |
| Этажность | 1.5 |
| Общая площадь | 134.89 м² |
| Площадь застройки | 97.61 м² |
| Кол-во спален | 4 |
| Количество ванных комнат | 2 |
| Стиль проекта | Европейский |
| Материал стен | Каркас |
| Тип кровли | Скатная кровля |
| Наличие цокольного этажа | Нет |
| Наличие гаража | Нет |
| Машиноместа | - |
| Чердак | Нет |
| Терраса | Да |
| Балкон | Да |
| Второй свет | - |
| Сауна | Нет |
Проект дома F-10124 представляет собой отличное решение для тех, кто мечтает о просторном и уютном жилье. Этот проект отличается продуманной планировкой, которая позволяет максимально эффективно использовать каждый квадратный метр площади.
Простор и функциональность
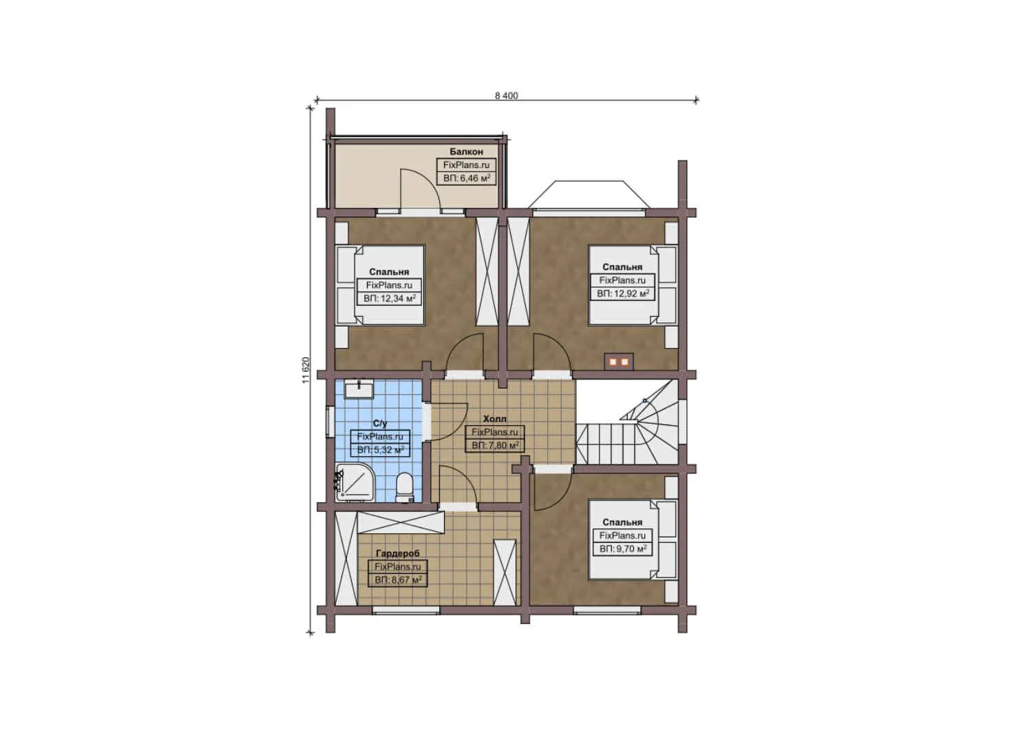
Дом имеет общую площадь 134,89 м², что обеспечивает достаточно места для комфортной жизни большой семьи. Четыре спальни и две ванные комнаты создают идеальные условия для всех членов семьи. Мансарда добавляет дополнительный объем пространству, позволяя реализовать интересные дизайнерские решения.
Особенности планировки
Длина дома составляет 8,40 м, а ширина — 11,62 м. Эта конфигурация позволяет создать гармоничное пространство с продуманной планировкой. Материал стен — каркас, что обеспечивает надежность и долговечность конструкции. Скатная кровля придает дому стильный вид и защищает от погодных условий.
Дополнительные удобства
Наличие террасы и балкона расширяет возможности для отдыха на свежем воздухе. Эти элементы придают дому особый шарм и позволяют наслаждаться видами вокруг в любое время года. Отсутствие цокольного этажа упрощает строительство и обслуживание дома, делая его более доступным по цене.
Стиль и комфорт
Европейский стиль проекта придает дому современный и элегантный вид. Просторный дом с мансардой станет не только уютным жилищем, но и гордостью его владельцев. Создайте свой идеальный дом с проектом F-10124 — выберите комфорт и качество на долгие годы.