F-10340 - Планы двухэтажного дома 16 на 18, площадью 280 м² с 4 спальнями
| Параметр проекта | Значение |
|---|---|
| Длина | 15.21 м |
| Ширина | 17.02 м |
| Этажность | 2 |
| Общая площадь | 272.69 м² |
| Площадь застройки | 258.87 м² |
| Кол-во спален | 4 |
| Количество ванных комнат | - |
| Стиль проекта | Современный |
| Материал стен | Газобетон |
| Тип кровли | Плоская кровля |
| Наличие цокольного этажа | Нет |
| Наличие гаража | Нет |
| Машиноместа | - |
| Чердак | Нет |
| Терраса | Нет |
| Балкон | Нет |
| Второй свет | - |
| Сауна | Нет |
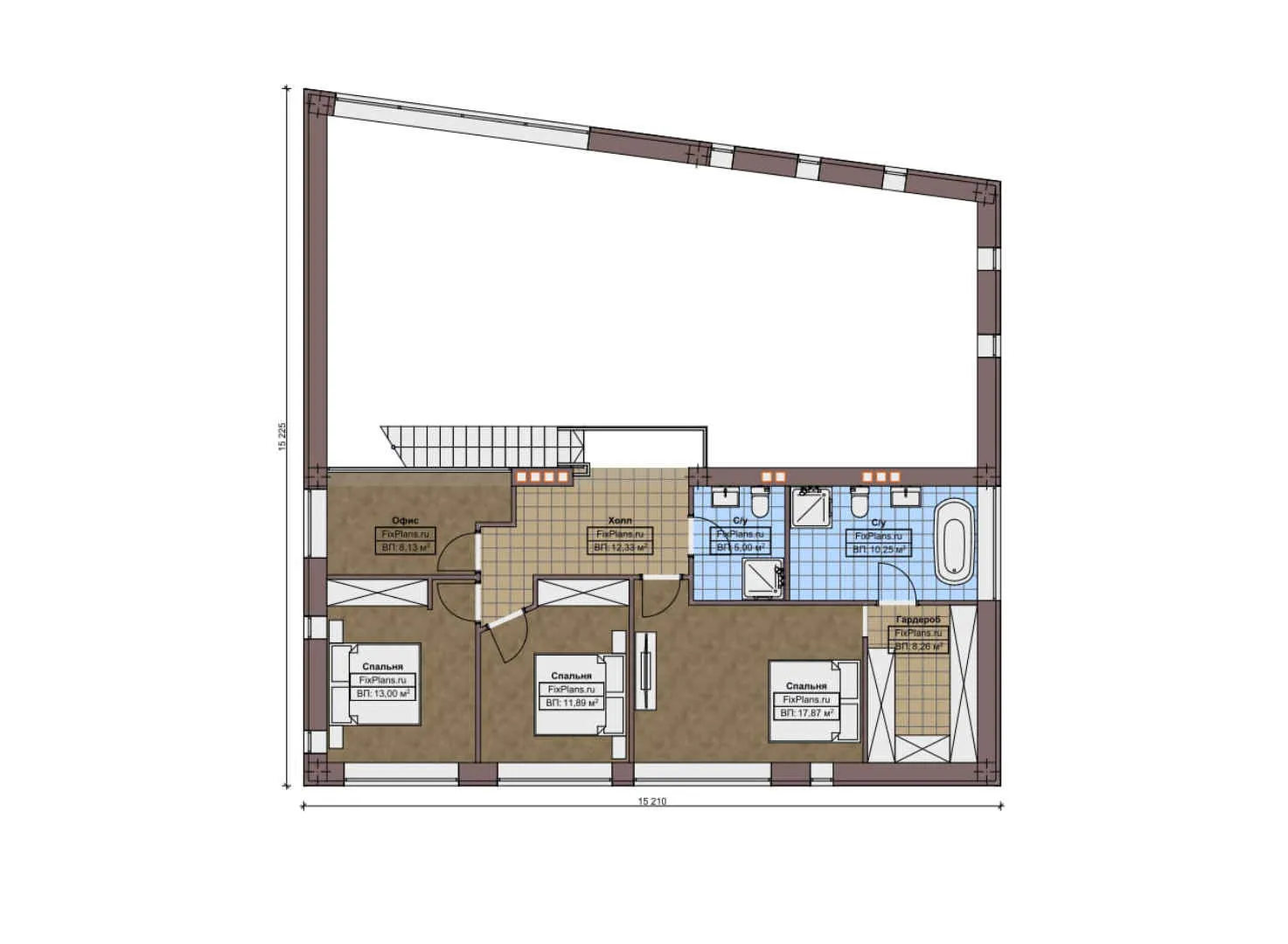
Проект двухэтажного дома F-10340 представляет собой отличное решение для тех, кто ценит простор и комфорт. Общая площадь составляет 272,69 м², что позволяет разместить все необходимые помещения и создать удобное пространство для жизни. Длина дома — 15,21 м, ширина — 17,02 м, а этажность — 2 этажа.
Функциональность и практичность
В доме предусмотрено 4 спальни, что делает его идеальным выбором для семей с детьми или тех, кто любит принимать гостей. Отсутствие гаража компенсируется просторной планировкой самого дома, где каждый найдёт своё место. Материал стен — газобетон, обеспечивающий надёжность и долговечность конструкции. Плоская кровля придаёт дому современный вид и упрощает обслуживание крыши.
Современный стиль
Проект выполнен в современном стиле, который отличается лаконичностью форм и использованием современных материалов. Отсутствие чердака и террасы не мешает наслаждаться комфортом внутри дома, а отсутствие балкона компенсируется большими окнами, через которые проникает много света.
Преимущества проекта
Выбирая проект F-10340, вы получаете не только комфортное жильё, но и уверенность в его качестве и надёжности. Газобетонные стены обеспечивают отличную теплоизоляцию, что позволяет сэкономить на отоплении и создать уютную атмосферу в доме. Современный стиль дома подчеркнёт ваш вкус и станет украшением вашего участка.