F-1142 - Планы двухэтажного дома 11 на 17, площадью 270 м² с террасой, балконом, гаражом на 1 машину и 4 спальнями
| Параметр проекта | Значение |
|---|---|
| Длина | 10.70 м |
| Ширина | 16.50 м |
| Этажность | 2 |
| Общая площадь | 260.70 м² |
| Площадь застройки | 176.55 м² |
| Кол-во спален | 4 |
| Количество ванных комнат | 2 |
| Стиль проекта | Европейский |
| Материал стен | Газобетон |
| Тип кровли | Скатная кровля |
| Наличие цокольного этажа | Нет |
| Наличие гаража | Да |
| Машиноместа | на 1 машину |
| Чердак | Да |
| Терраса | Да |
| Балкон | Да |
| Второй свет | - |
| Сауна | Нет |
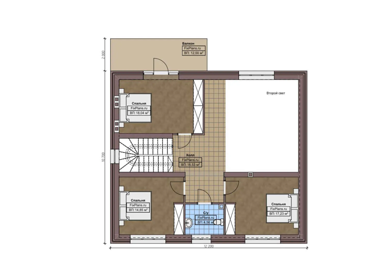
Проект F-1142 представляет собой двухэтажный дом площадью 270 м² с четырьмя спальнями, что делает его отличным выбором для семей. Просторные комнаты обеспечивают комфортное проживание и достаточно места для отдыха и развлечений. Общая площадь дома составляет 260,70 м², включая террасу, балкон и другие функциональные зоны.
Функциональность и практичность
Дом F-1142 обладает продуманной планировкой с учётом всех потребностей современного человека. Наличие гаража на одну машину обеспечивает удобное хранение автомобиля и защиту от неблагоприятных погодных условий. Чердак добавляет дополнительное пространство для хранения вещей или организации рабочего места.
Европейский стиль и качество материалов
Стиль проекта — европейский, что придаёт дому современный и элегантный вид. Газобетонные стены обеспечивают надёжность и долговечность конструкции. Скатная кровля защищает дом от осадков и придаёт ему завершённый внешний вид. Отсутствие цокольного этажа упрощает обслуживание дома и делает его более доступным для осмотра.
Дополнительные возможности
Терраса и балкон предоставляют прекрасные возможности для отдыха на свежем воздухе. Наличие чердака позволяет использовать дополнительное пространство по вашему усмотрению. Этот проект сочетает в себе комфорт, практичность и эстетику, делая его идеальным выбором для тех, кто ценит качество и удобство.