F-11492 - Планы двухэтажного дома 10 на 10, площадью 110 м² с баней и 4 спальнями
| Параметр проекта | Значение |
|---|---|
| Длина | 9.30 м |
| Ширина | 9.01 м |
| Этажность | 2 |
| Общая площадь | 102.34 м² |
| Площадь застройки | 83.79 м² |
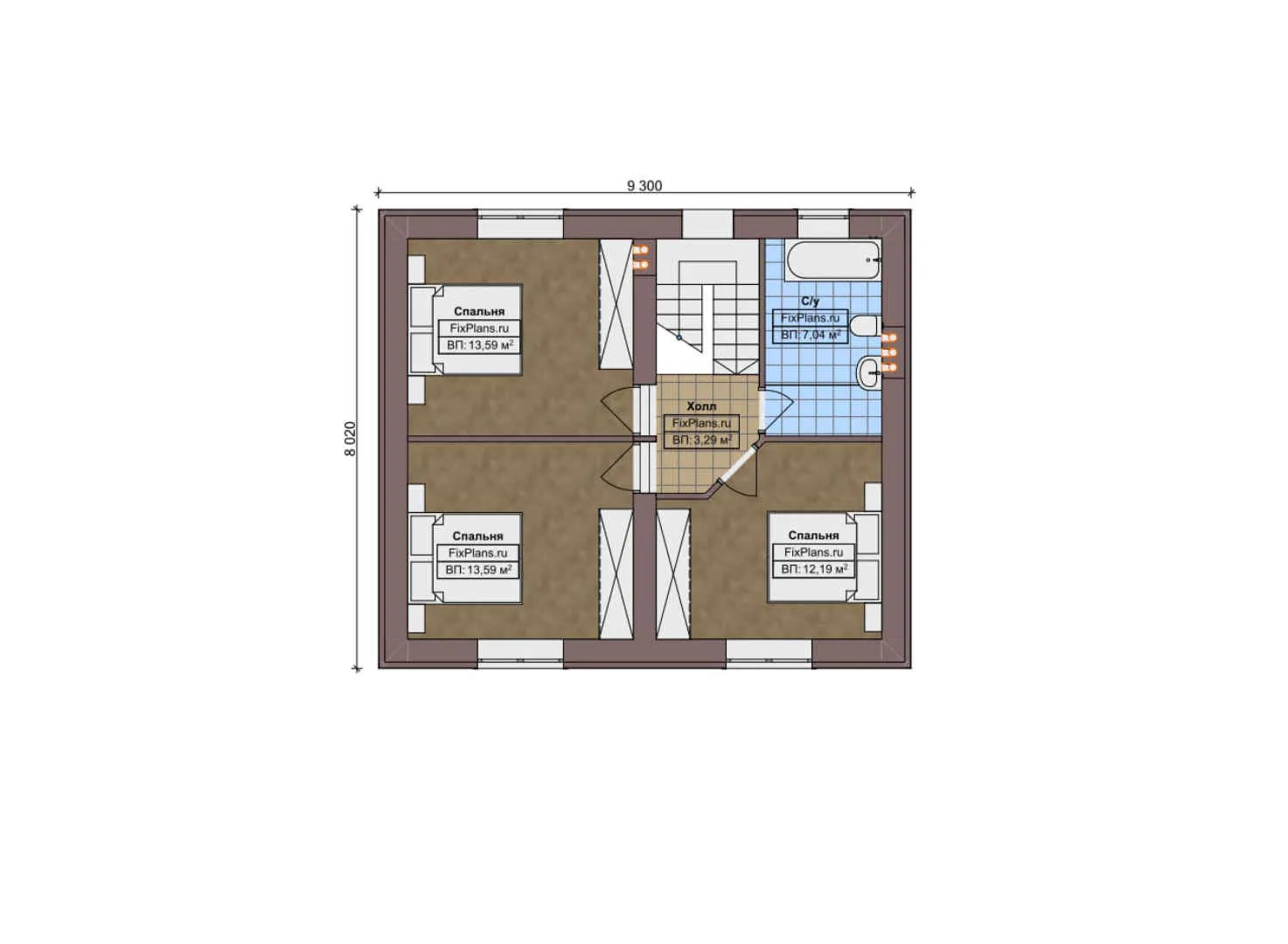
| Кол-во спален | 4 |
| Количество ванных комнат | 2 |
| Стиль проекта | Европейский |
| Материал стен | Газобетон |
| Тип кровли | Скатная кровля |
| Наличие цокольного этажа | Нет |
| Наличие гаража | Нет |
| Машиноместа | - |
| Чердак | Да |
| Терраса | Нет |
| Балкон | Нет |
| Второй свет | - |
| Сауна | Да |
Представляем вам проект двухэтажного дома площадью 110 м² с четырьмя спальнями и всеми удобствами для комфортной жизни. Этот дом станет идеальным решением для вашей семьи, обеспечивая достаточно места для отдыха и работы.
Европейский стиль и функциональность
Проект выполнен в европейском стиле, который отличается своей лаконичностью и практичностью. Стены из газобетона обеспечивают отличную тепло- и звукоизоляцию, создавая комфортное пространство для проживания. Скатная кровля придаёт дому современный вид и защищает от непогоды.
Всё необходимое для жизни
В доме предусмотрены две ванные комнаты, что особенно удобно для большой семьи. Наличие чердака предоставляет дополнительные возможности для хранения вещей или организации рабочего пространства. Отсутствие террасы и балкона компенсируется просторным вторым этажом и уютной атмосферой внутри дома.
Баня для здоровья и отдыха
Одним из преимуществ проекта является наличие сауны. Она станет отличным местом для релаксации и поддержания здоровья после напряжённого дня. Сауна в доме — это не только удобно, но и практично, особенно в холодное время года.
Не упустите возможность воплотить свою мечту о просторном и уютном доме! Оставьте заявку на этом сайте и получите подробную консультацию от наших специалистов.