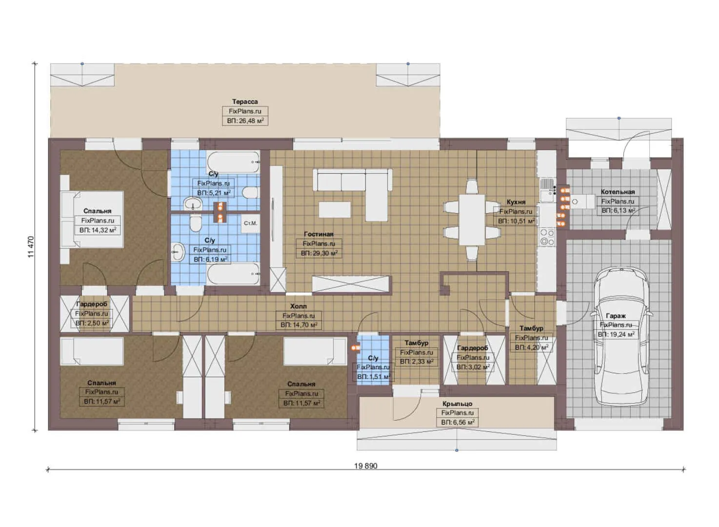
F-12545 - План одноэтажного дома 12 на 20, площадью 180 м² с террасой, гаражом на 1 машину и 3 спальнями
| Параметр проекта | Значение |
|---|---|
| Длина | 19.40 м |
| Ширина | 12.00 м |
| Этажность | 1 |
| Общая площадь | 178.31 м² |
| Площадь застройки | 232.80 м² |
| Кол-во спален | 3 |
| Количество ванных комнат | 2 |
| Стиль проекта | Европейский |
| Материал стен | Газобетон |
| Тип кровли | Скатная кровля |
| Наличие цокольного этажа | Нет |
| Наличие гаража | Да |
| Машиноместа | на 1 машину |
| Чердак | Да |
| Терраса | Да |
| Балкон | Нет |
| Второй свет | - |
| Сауна | Нет |
Проект одноэтажного дома площадью 180 м² представляет собой отличное решение для тех, кто ценит простор и функциональность. Длина здания составляет 19,40 метра, а ширина — 12 метров. Такая конфигурация позволяет максимально эффективно использовать пространство, создавая комфортные условия для жизни.
Европейские стандарты комфорта
Стиль проекта — европейский, что гарантирует высокое качество исполнения и соответствие современным стандартам комфорта. Материал стен — газобетон, обеспечивающий отличную тепло- и звукоизоляцию. Скатная кровля придаёт дому элегантный вид и защищает от погодных условий.
Многофункциональность и удобство
В доме предусмотрено три спальни и две ванные комнаты, что идеально подходит для семей или тех, кто ценит личное пространство. Наличие гаража на одно машиноместо обеспечивает удобное хранение автомобиля и дополнительную безопасность. Также в проекте предусмотрена терраса, где можно проводить время на свежем воздухе.
Дополнительные возможности
Чердак и возможность обустройства второго света создают дополнительные варианты для планирования пространства. Хотя сауна не предусмотрена, это позволяет сохранить чистоту стиля и функциональность проекта. Этот проект — отличный выбор для тех, кто ищет комфортное жильё с продуманной планировкой и современными решениями.