F-13517 - План одноэтажного дома 12 на 19, площадью 130 м² с баней и 3 спальнями
| Параметр проекта | Значение |
|---|---|
| Длина | 19.00 м |
| Ширина | 11.50 м |
| Этажность | 1 |
| Общая площадь | 125.11 м² |
| Площадь застройки | 218.50 м² |
| Кол-во спален | 3 |
| Количество ванных комнат | 2 |
| Стиль проекта | Европейский |
| Материал стен | Газобетон |
| Тип кровли | Скатная кровля |
| Наличие цокольного этажа | Нет |
| Наличие гаража | Нет |
| Машиноместа | - |
| Чердак | Да |
| Терраса | Нет |
| Балкон | Нет |
| Второй свет | - |
| Сауна | Да |
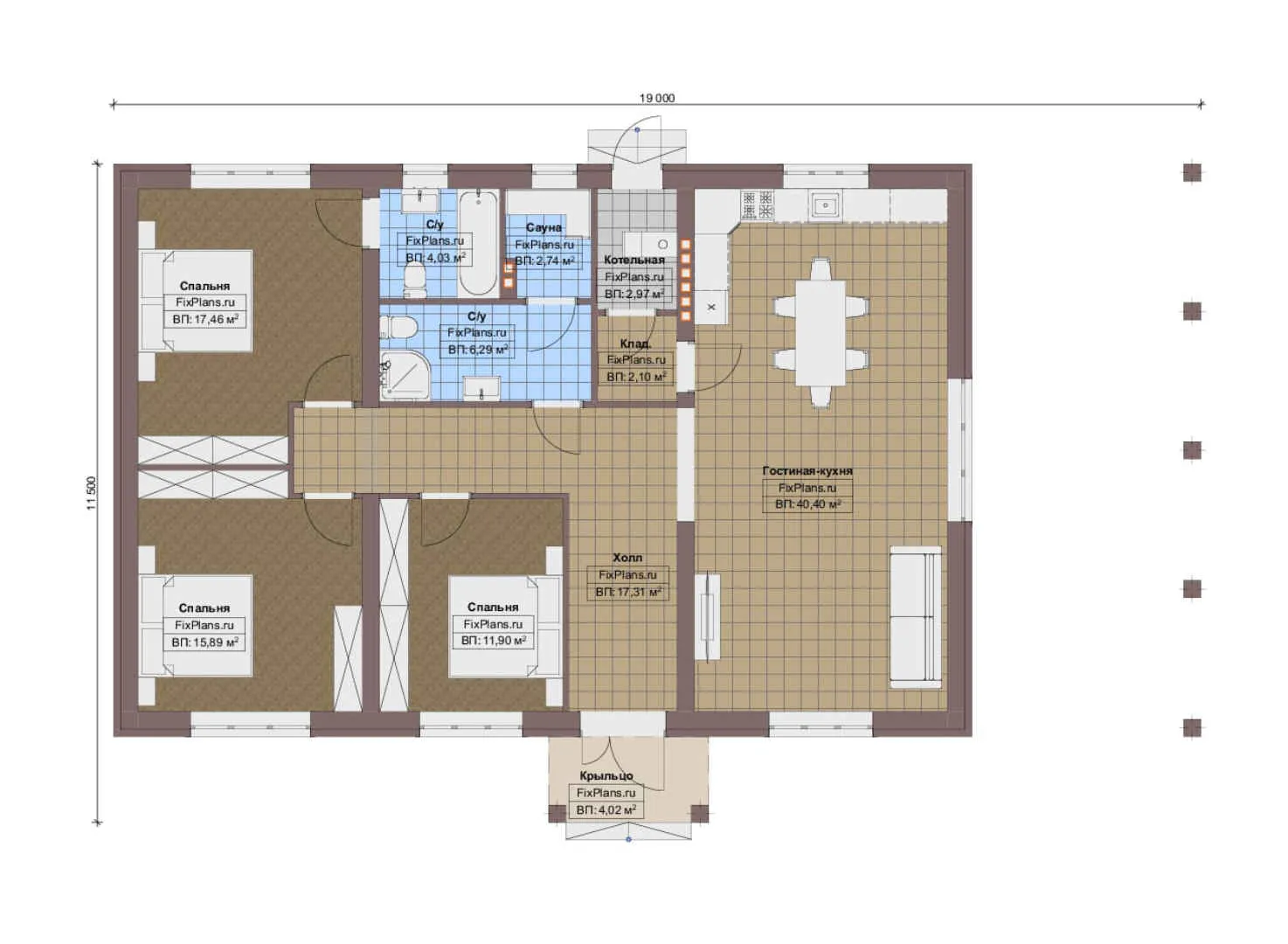
Проект одноэтажного дома площадью 130 м² с баней и тремя спальнями представляет собой отличное решение для тех, кто ценит комфорт и качество. Этот проект идеально подходит для строительства в европейском стиле, который отличается своей практичностью и эстетикой.
Простор и функциональность
Дом имеет продуманную планировку, которая позволяет максимально эффективно использовать каждый квадратный метр пространства. Общая площадь составляет 125,11 м², а площадь застройки — 218,50 м². В доме предусмотрены три спальни, две ванные комнаты, чердак и сауна. Отсутствие гаража компенсируется наличием других функциональных зон.
Материал и кровля
Стены дома выполнены из газобетона, что обеспечивает отличную теплоизоляцию и долговечность конструкции. Скатная кровля придаёт дому современный вид и защищает от атмосферных осадков. Наличие чердака добавляет дополнительное пространство для хранения или отдыха.
Преимущества проекта
Одним из главных преимуществ этого проекта является наличие сауны, которая станет отличным местом для релаксации и оздоровления. Также стоит отметить отсутствие террасы и балкона, что позволяет избежать дополнительных расходов на их обустройство и обслуживание.
Не упустите возможность построить дом своей мечты! Оставьте заявку на нашем сайте и начните воплощать свои идеи в реальность.