F-14417 - План одноэтажного дома 14 на 15, площадью 160 м² с террасой и 3 спальнями
| Параметр проекта | Значение |
|---|---|
| Длина | 14.41 м |
| Ширина | 13.21 м |
| Этажность | 1 |
| Общая площадь | 159.60 м² |
| Площадь застройки | 190.36 м² |
| Кол-во спален | 3 |
| Количество ванных комнат | 3 |
| Стиль проекта | Европейский |
| Материал стен | Газобетон |
| Тип кровли | Скатная кровля |
| Наличие цокольного этажа | Нет |
| Наличие гаража | Нет |
| Машиноместа | - |
| Чердак | Да |
| Терраса | Да |
| Балкон | Нет |
| Второй свет | - |
| Сауна | Нет |
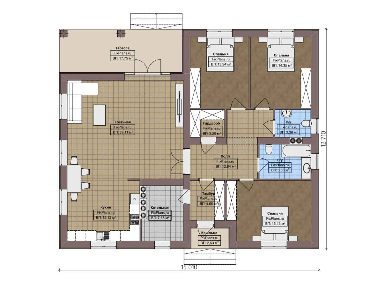
Проект одноэтажного дома площадью 160 м² с террасой и тремя спальнями представляет собой отличное решение для тех, кто ценит комфорт и простор. Этот проект идеально подойдёт тем, кто ищет уютное жильё в европейском стиле.
Простор и функциональность
Дом имеет продуманную планировку, которая позволяет максимально эффективно использовать каждый квадратный метр пространства. Общая площадь составляет 159,60 м², а площадь застройки — 160,36 м². Это обеспечивает достаточно места для комфортного проживания всей семьи. Три спальни и три ванные комнаты создают удобство для всех членов семьи.
Материал и конструкция
Стены дома выполнены из газобетона, что гарантирует высокую прочность и долговечность конструкции. Скатная кровля защищает дом от непогоды, обеспечивая надёжность и устойчивость. Наличие чердака добавляет дополнительную функциональность и возможность хранения вещей. Отсутствие цокольного этажа упрощает процесс строительства и снижает затраты на возведение фундамента.
Дополнительные возможности
Терраса — отличное место для отдыха на свежем воздухе. Она станет прекрасным дополнением к вашему дому, где можно проводить тёплые вечера в кругу семьи или друзей. При этом отсутствие балкона компенсируется наличием террасы, которая предоставляет больше возможностей для обустройства внешнего пространства.
Проект одноэтажного дома 160 м² с террасой и тремя спальнями — это не просто дом, это ваш новый образ жизни. Создайте уютное и комфортное пространство для себя и своих близких.