F-14696 - Планы двухэтажного дома 13 на 18, площадью 350 м² с террасой, балконом, баней, бассейном и 3 спальнями
| Параметр проекта | Значение |
|---|---|
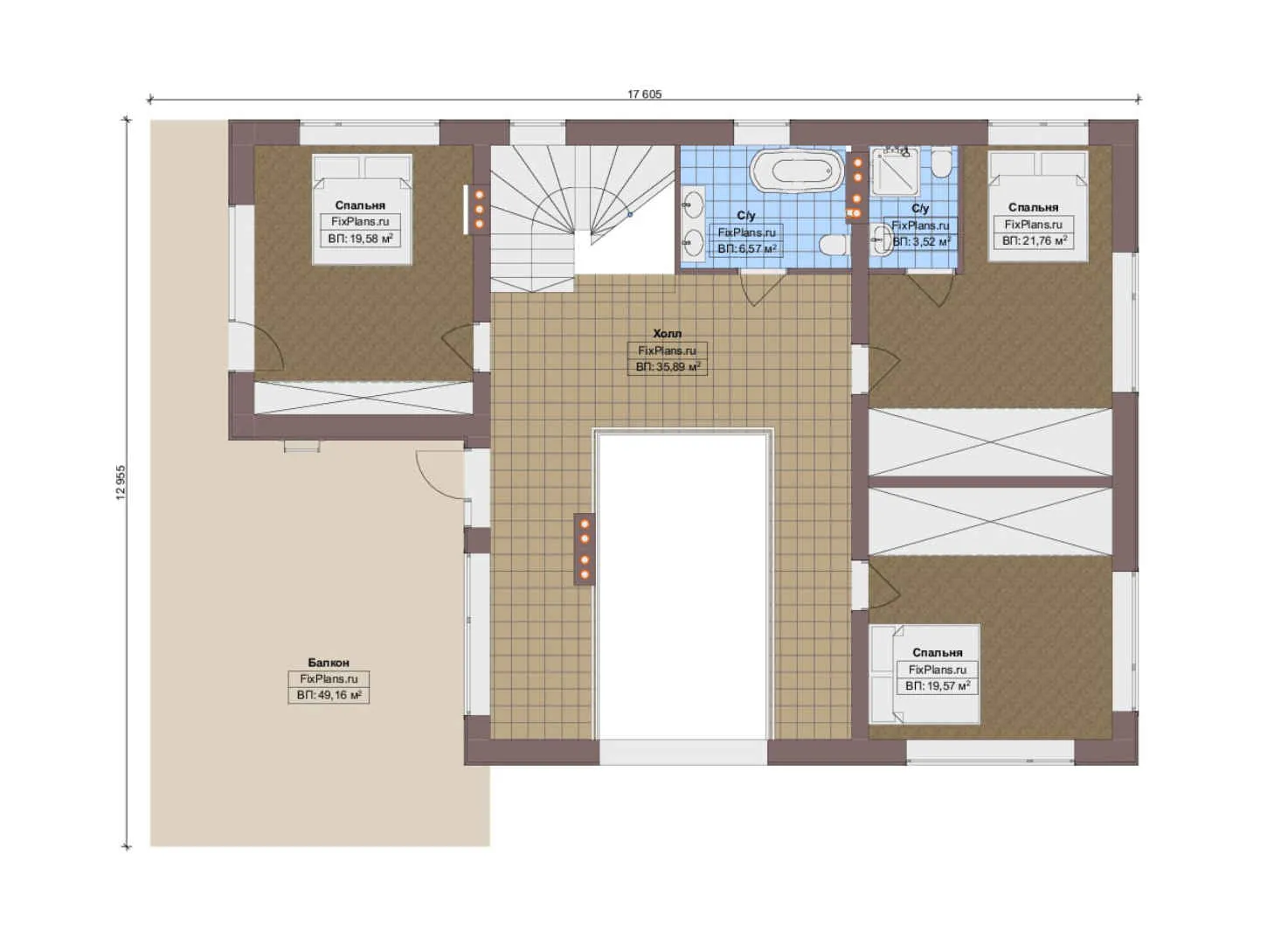
| Длина | 17.66 м |
| Ширина | 12.90 м |
| Этажность | 2 |
| Общая площадь | 341.87 м² |
| Площадь застройки | 227.75 м² |
| Кол-во спален | 3 |
| Количество ванных комнат | 3 |
| Стиль проекта | Современный |
| Материал стен | Газобетон |
| Тип кровли | Плоская кровля |
| Наличие цокольного этажа | Нет |
| Наличие гаража | Нет |
| Машиноместа | - |
| Чердак | Нет |
| Терраса | Да |
| Балкон | Да |
| Второй свет | - |
| Сауна | Да |
Проект двухэтажного дома площадью 350 м² предлагает достаточно места для комфортной жизни всей семьи. С длиной в 17,66 метра и шириной в 12,90 метра, этот дом обеспечит вам необходимое пространство для отдыха и работы. Три спальни и три ванные комнаты создают идеальные условия для проживания нескольких поколений или большой семьи.
Современный стиль и надёжность
Современный стиль проекта подчеркнёт ваш вкус и статус. Газобетонные стены гарантируют высокую прочность конструкции, а плоская кровля обеспечивает долговечность и устойчивость к различным погодным условиям. Отсутствие цокольного этажа упрощает обслуживание дома, сохраняя при этом его эстетичный вид.
Дополнительные удобства
Наличие террасы и балкона позволяет наслаждаться свежим воздухом в любое время года. Эти пространства идеально подходят для отдыха на свежем воздухе, проведения семейных мероприятий или просто для любования закатом. Также предусмотрена сауна, которая станет отличным дополнением к отдыху после рабочего дня.
Возможности для активного образа жизни
Проект включает в себя не только жилые помещения, но и дополнительные удобства для активного образа жизни. Бассейн станет местом для водных процедур и развлечений, а отсутствие гаража компенсируется возможностью обустройства парковочного места рядом с домом. Этот проект сочетает в себе всё необходимое для создания идеального дома вашей мечты.