F-15362 - Планы дома с мансардой 9 на 10, площадью 90 м² с 1 спальнями
| Параметр проекта | Значение |
|---|---|
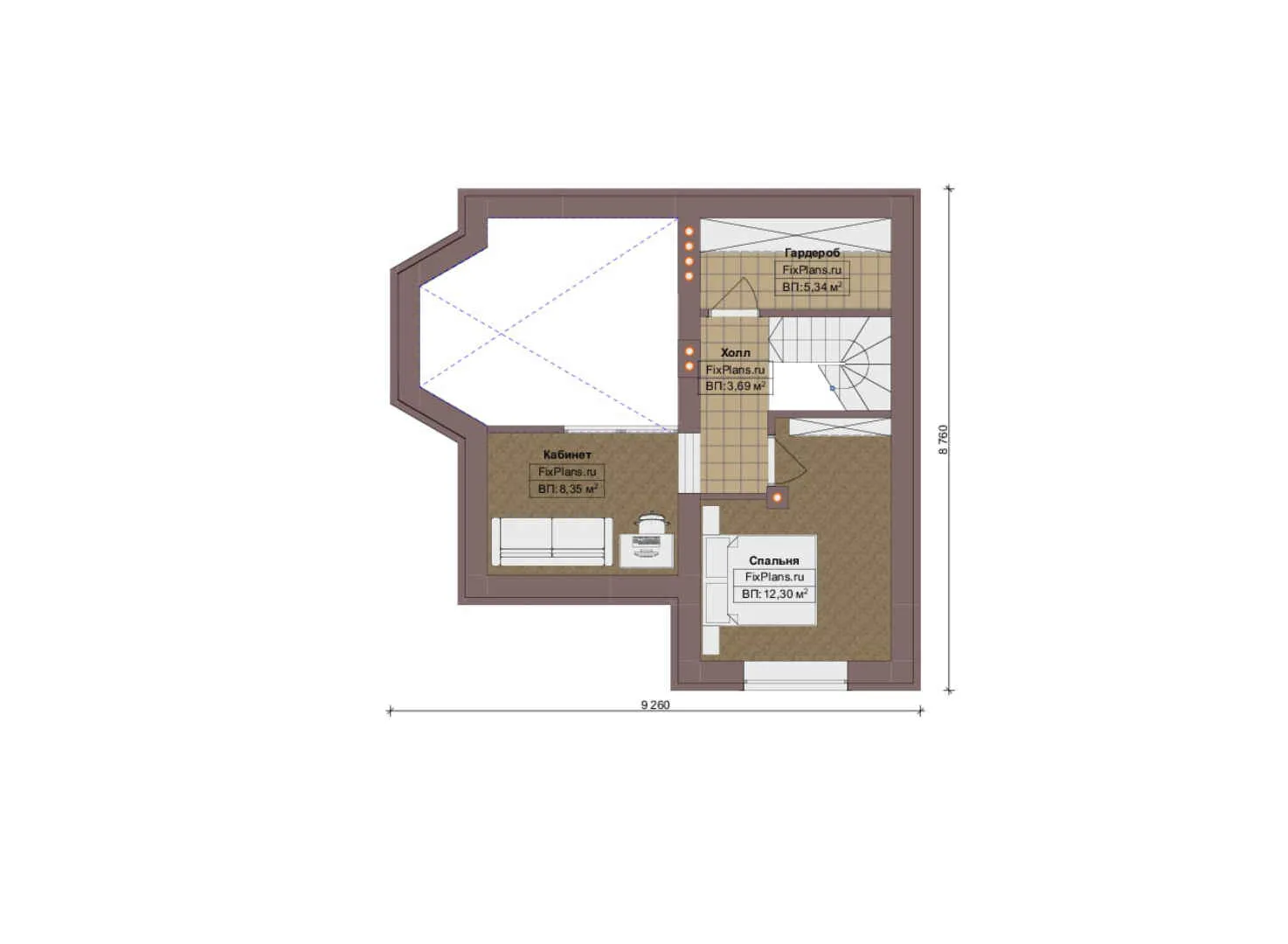
| Длина | 9.26 м |
| Ширина | 8.76 м |
| Этажность | 1.5 |
| Общая площадь | 82.69 м² |
| Площадь застройки | 81.12 м² |
| Кол-во спален | 1 |
| Количество ванных комнат | 1 |
| Стиль проекта | Европейский |
| Материал стен | Керамический поризованный блок |
| Тип кровли | Скатная кровля |
| Наличие цокольного этажа | Нет |
| Наличие гаража | Нет |
| Машиноместа | - |
| Чердак | Нет |
| Терраса | Нет |
| Балкон | Нет |
| Второй свет | - |
| Сауна | Нет |
Проект дома с мансардой размером 9 на 10 метров представляет собой отличное решение для тех, кто ищет компактное и функциональное жильё. Общая площадь проекта составляет 90 квадратных метров, что позволяет разместить все необходимые помещения для комфортной жизни.
Преимущества планировки
Планировка дома продумана до мелочей. Длина здания — 9,26 метра, ширина — 8,76 метра. Этажность — полтора этажа, что обеспечивает дополнительное пространство без необходимости увеличения площади участка. Наличие одной спальни и одной ванной комнаты делает проект оптимальным выбором для небольших семей или тех, кто предпочитает компактное жильё.
Материал стен и кровля
Стены дома выполнены из керамического поризованного блока, что гарантирует их прочность и долговечность. Скатная кровля защищает дом от атмосферных осадков и придаёт ему завершённый вид. Отсутствие цокольного этажа упрощает строительство и эксплуатацию здания.
Европейский стиль
Проект выполнен в европейском стиле, который отличается лаконичностью форм и использованием натуральных материалов. Такой подход позволяет создать уютное и гармоничное пространство для жизни. Проект не предусматривает наличие террасы, балкона или второго света, что делает его более практичным и удобным для повседневного использования.
Отсутствие дополнительных построек
Отсутствие гаража и других дополнительных построек упрощает процесс проектирования и строительства, а также снижает общую стоимость проекта. Это делает дом доступным для широкого круга покупателей.