F-1592i - Планы дома с мансардой 11 на 15, площадью 210 м² с террасой и 5 спальнями
| Параметр проекта | Значение |
|---|---|
| Длина | 10.35 м |
| Ширина | 14.57 м |
| Этажность | 1.5 |
| Общая площадь | 206.74 м² |
| Площадь застройки | 150.80 м² |
| Кол-во спален | 5 |
| Количество ванных комнат | 2 |
| Стиль проекта | Европейский |
| Материал стен | Газобетон |
| Тип кровли | Скатная кровля |
| Наличие цокольного этажа | Нет |
| Наличие гаража | Нет |
| Машиноместа | - |
| Чердак | Нет |
| Терраса | Да |
| Балкон | Нет |
| Второй свет | - |
| Сауна | Нет |
Проект дома F-1592i представляет собой отличное решение для семей, ищущих комфортное и просторное жильё. Этот проект отличается продуманной планировкой и высоким качеством исполнения.
Простор и функциональность
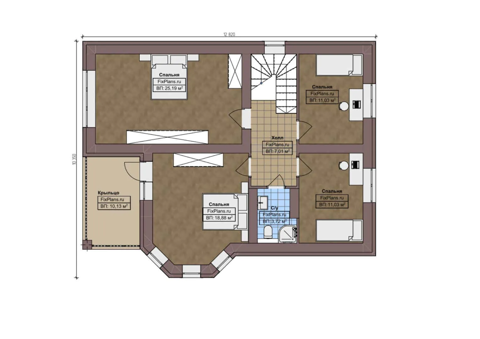
Дом с мансардой 11 на 15 метров площадью 210 м² предлагает достаточно места для комфортного проживания. Пять спален и две ванные комнаты обеспечивают удобство для всех членов семьи. Общая площадь дома позволяет разместить все необходимые помещения, включая просторные гостиные и уютные спальни.
Материал и конструкция
Стены из газобетона гарантируют отличную тепло- и звукоизоляцию, что создаёт комфортные условия для жизни в любое время года. Скатная кровля обеспечивает надёжность конструкции и долговечность всего здания. Отсутствие цокольного этажа упрощает строительство и обслуживание дома.
Дополнительные возможности
Наличие террасы добавляет дополнительные возможности для отдыха на свежем воздухе. Этот элемент дизайна делает дом не только уютным жилищем, но и местом для приятных встреч с семьёй и друзьями. Терраса может стать идеальным пространством для проведения летних вечеров или утренних кофе под открытым небом.
Европейский стиль
Проект выполнен в европейском стиле, который отличается лаконичностью форм и высоким качеством отделки. Этот стиль подчеркнёт индивидуальность вашего дома и придаст ему особый шарм. Проект F-1592i сочетает в себе современные тенденции архитектуры и практичность, что делает его привлекательным выбором для тех, кто ценит комфорт и качество жизни.
Выбирая проект F-1592i, вы получаете не просто дом, а пространство для счастливой жизни вашей семьи. Ознакомьтесь с полным описанием проекта на нашем сайте и сделайте свой выбор в пользу качества и комфорта.