F-15956 - Планы дома с мансардой 13 на 20, площадью 240 м² с террасой, гаражом на 2 машины и 4 спальнями
| Параметр проекта | Значение |
|---|---|
| Длина | 12.72 м |
| Ширина | 19.84 м |
| Этажность | 1.5 |
| Общая площадь | 235.78 м² |
| Площадь застройки | 252.30 м² |
| Кол-во спален | 4 |
| Количество ванных комнат | 2 |
| Стиль проекта | Европейский |
| Материал стен | Газобетон |
| Тип кровли | Скатная кровля |
| Наличие цокольного этажа | Нет |
| Наличие гаража | Да |
| Машиноместа | на 2 машины |
| Чердак | Нет |
| Терраса | Да |
| Балкон | Нет |
| Второй свет | - |
| Сауна | Нет |
Проект дома F-15956 представляет собой отличное решение для тех, кто мечтает о просторном и уютном жилье. Этот проект отличается продуманной планировкой и функциональностью, что делает его идеальным выбором для семей, ценящих комфорт и качество жизни.
Простор и удобство
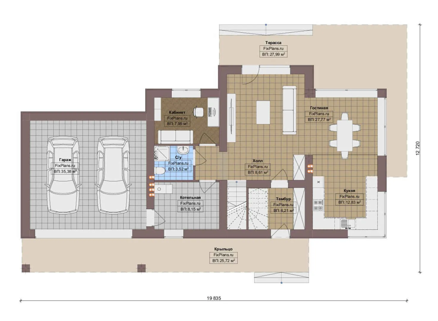
Дом имеет площадь 240 м², что обеспечивает достаточно места для всей семьи. Длина дома составляет 12,72 м, а ширина — 19,84 м. Это позволяет разместить все необходимые помещения и создать удобное пространство для отдыха и работы. Наличие гаража на две машины делает проект особенно привлекательным для тех, кто ценит практичность и безопасность своего транспорта.
Европейские традиции в архитектуре
Стиль проекта — европейский, что придаёт дому особый шарм и элегантность. Материал стен — газобетон, который отличается высокой прочностью и долговечностью. Скатная кровля обеспечивает надёжность и устойчивость конструкции.
Функциональность и комфорт
В доме предусмотрено четыре спальни и две ванные комнаты, что создаёт комфортные условия для проживания нескольких поколений семьи. Наличие террасы позволяет наслаждаться свежим воздухом и красивыми видами в любое время года. Отсутствие чердака компенсируется просторной планировкой основных помещений.
Преимущества проекта
Проект дома F-15956 сочетает в себе практичность, комфорт и эстетику. Его продуманная планировка, функциональные решения и высокое качество материалов делают этот проект отличным выбором для тех, кто ищет надёжное и удобное жильё. Не упустите возможность воплотить свои мечты о доме в реальность!