F-16262 - Планы дома с мансардой 16 на 18, площадью 310 м² с 2 спальнями
| Параметр проекта | Значение |
|---|---|
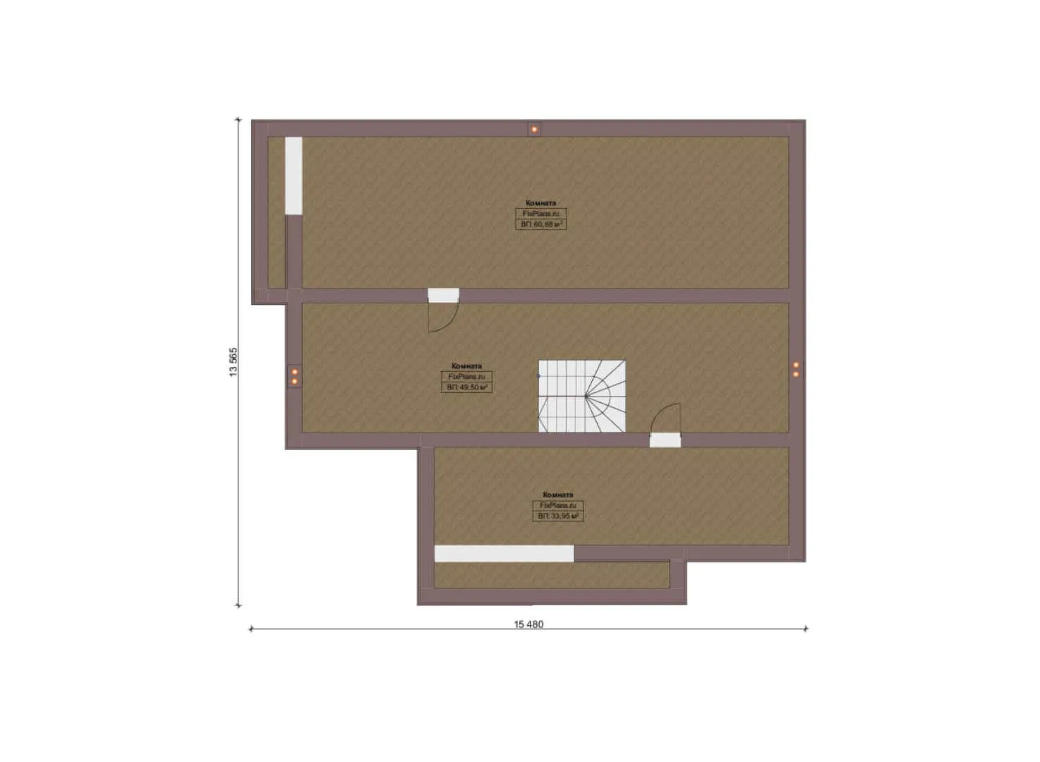
| Длина | 15.48 м |
| Ширина | 17.48 м |
| Этажность | 1.5 |
| Общая площадь | 309.28 м² |
| Площадь застройки | 270.67 м² |
| Кол-во спален | 2 |
| Количество ванных комнат | - |
| Стиль проекта | Европейский |
| Материал стен | Газобетон |
| Тип кровли | Скатная кровля |
| Наличие цокольного этажа | Нет |
| Наличие гаража | Нет |
| Машиноместа | - |
| Чердак | Нет |
| Терраса | Нет |
| Балкон | Нет |
| Второй свет | - |
| Сауна | Нет |
Проект дома с мансардой размером 16 на 18 метров представляет собой отличное решение для тех, кто ценит европейский стиль в архитектуре. Общая площадь составляет 309,28 м², что обеспечивает достаточно места для комфортной жизни большой семьи. Просторные комнаты позволят вам реализовать любые дизайнерские идеи и создать уютное пространство для отдыха и работы.
Функциональность и практичность
Этот проект отличается продуманной планировкой с двумя спальнями, что делает его идеальным выбором для семей. Отсутствие гаража компенсируется возможностью использования пространства по-другому, например, под дополнительные жилые помещения или зону отдыха. Площадь застройки составляет 270,67 м², что позволяет максимально эффективно использовать каждый квадратный метр участка.
Материал стен и кровля
Дом построен из газобетона, что обеспечивает высокую прочность и долговечность конструкции. Скатная кровля добавляет элегантности внешнему виду здания и защищает от атмосферных осадков. Отсутствие чердака и террасы упрощает обслуживание дома и делает его более практичным в эксплуатации.
Преимущества проекта
Проект дома с мансардой 16 на 18 – это не только красивый, но и практичный выбор для вашего участка. Просторная планировка, европейский стиль, функциональность и практичность делают этот проект идеальным решением для тех, кто ищет надёжное и комфортное жильё. Оставьте заявку на сайте, чтобы узнать больше о проекте и начать строительство своего дома мечты!