F-16541 - Планы дома с мансардой 9 на 13, площадью 120 м² с 3 спальнями
| Параметр проекта | Значение |
|---|---|
| Длина | 12.35 м |
| Ширина | 8.12 м |
| Этажность | 1.5 |
| Общая площадь | 119.85 м² |
| Площадь застройки | 100.28 м² |
| Кол-во спален | 3 |
| Количество ванных комнат | - |
| Стиль проекта | Барнхаус |
| Материал стен | Газобетон |
| Тип кровли | Скатная кровля |
| Наличие цокольного этажа | Нет |
| Наличие гаража | Нет |
| Машиноместа | - |
| Чердак | Нет |
| Терраса | Нет |
| Балкон | Нет |
| Второй свет | - |
| Сауна | Нет |
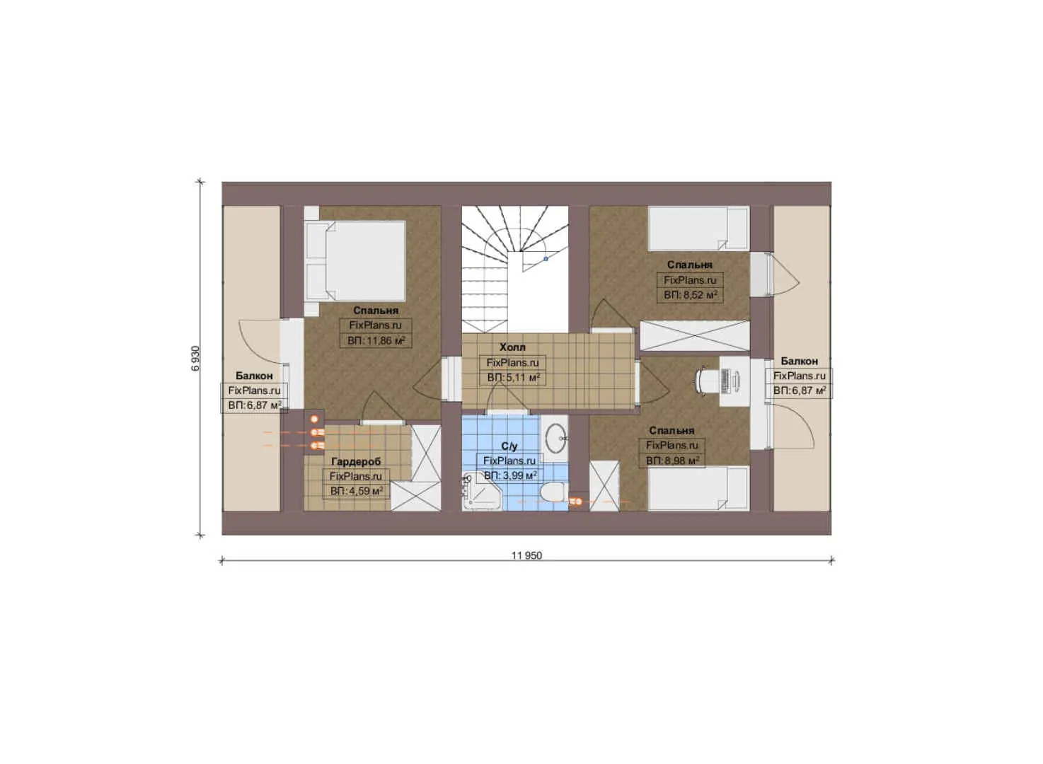
Проект дома с мансардой 9 на 13 представляет собой отличное решение для тех, кто ищет уютное и функциональное жильё площадью 120 м². Этот проект отличается продуманной планировкой, которая позволяет максимально эффективно использовать каждый квадратный метр.
Просторный и функциональный дом
Длина дома составляет 12,35 м, а ширина — 8,12 м. Благодаря таким размерам, в доме можно разместить всё необходимое для комфортной жизни: три спальни, общую площадь помещений в 119,85 м². При этом площадь застройки составляет 120,28 м², что делает проект особенно привлекательным для владельцев небольших участков.
Стиль и материалы
Стиль проекта — барнхаус, который отличается своей лаконичностью и простотой форм. Материал стен — газобетон, обеспечивающий надёжность и долговечность конструкции. Скатная кровля добавляет проекту современный вид и защищает дом от непогоды.
Отсутствие лишних элементов
Отсутствие цокольного этажа и гаража позволяет сэкономить пространство и сделать проект более компактным. Также в проекте нет чердака, террасы и балкона, что упрощает обслуживание дома и делает его более практичным.
Преимущества проекта
Проект дома с мансардой 9 на 13 — это не только функциональное, но и эстетически привлекательное решение. Благодаря продуманной планировке и стильному дизайну, этот проект станет украшением любого участка. Если вы ищете надёжный и практичный дом, который будет радовать вас долгие годы, то этот проект — отличный выбор.