F-16928 - Планы дома с мансардой 19 на 20, площадью 340 м² с террасой, гаражом на 2 машины и 5 спальнями
| Параметр проекта | Значение |
|---|---|
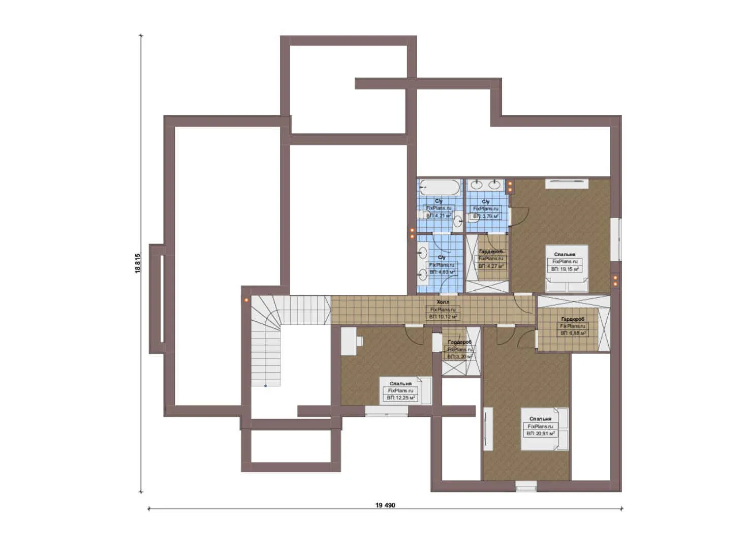
| Длина | 18.82 м |
| Ширина | 19.49 м |
| Этажность | 1.5 |
| Общая площадь | 334.95 м² |
| Площадь застройки | 366.70 м² |
| Кол-во спален | 5 |
| Количество ванных комнат | 5 |
| Стиль проекта | Европейский |
| Материал стен | Газобетон |
| Тип кровли | Скатная кровля |
| Наличие цокольного этажа | Нет |
| Наличие гаража | Да |
| Машиноместа | на 2 машины |
| Чердак | Нет |
| Терраса | Да |
| Балкон | Нет |
| Второй свет | - |
| Сауна | Нет |
Ищете просторный и функциональный дом? Представляем вам проект F-16928 — идеальный выбор для тех, кто ценит комфорт и качество жизни. Этот проект отличается продуманной планировкой и включает в себя всё необходимое для комфортной жизни.
Простор и функциональность
Проект дома с мансардой 19 на 20 метров предлагает общую площадь 340 м². Это идеальное решение для большой семьи, которая ищет просторное жильё. Здесь предусмотрено пять спален и пять ванных комнат, что обеспечит комфорт каждому члену семьи.
Практичность и удобство
В проекте предусмотрен гараж на две машины, что особенно удобно для семей с автомобилем. Наличие террасы делает дом ещё более привлекательным, предоставляя дополнительное пространство для отдыха и развлечений на свежем воздухе. Отсутствие цокольного этажа упрощает строительство и обслуживание дома.
Стиль и материалы
Европейский стиль проекта придаст вашему дому современный вид. Газобетонные стены обеспечивают надёжность и долговечность конструкции. Скатная кровля — это не только эстетически привлекательный элемент, но и практичное решение для защиты от погодных условий.
Преимущества проекта F-16928
Проект дома с мансардой F-16928 предлагает множество преимуществ: просторную планировку, функциональность, практичность и стильный внешний вид. Этот проект станет отличным выбором для тех, кто ищет надёжное и комфортное жильё. Не упустите возможность воплотить свои мечты о доме в реальность — выберите проект F-16928!