F-17270 - План одноэтажного дома 15 на 24, площадью 240 м² с террасой, гаражом на 2 машины и 4 спальнями
45000 ₽
7-14 рабочих дней
F-17270
| Параметр проекта | Значение |
|---|---|
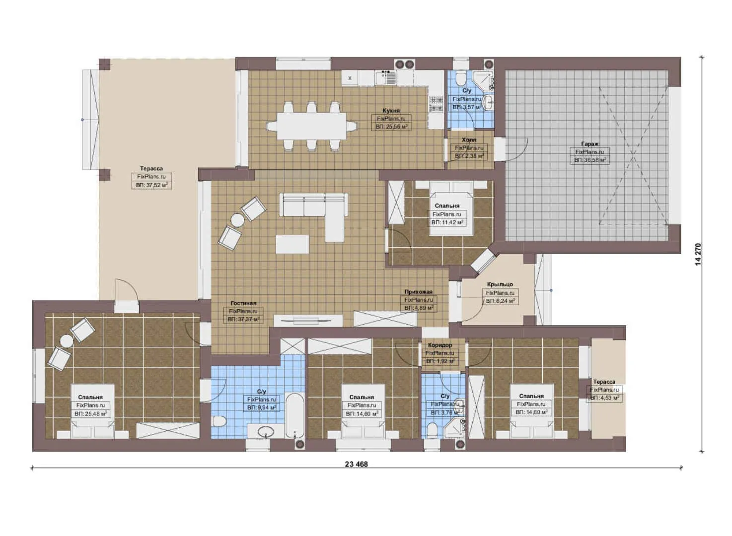
| Длина | 23.47 м |
| Ширина | 14.27 м |
| Этажность | 1 |
| Общая площадь | 240.36 м² |
| Площадь застройки | 334.92 м² |
| Кол-во спален | 4 |
| Количество ванных комнат | 3 |
| Стиль проекта | Европейский |
| Материал стен | Газобетон |
| Тип кровли | Скатная кровля |
| Наличие цокольного этажа | Нет |
| Наличие гаража | Да |
| Машиноместа | на 2 машины |
| Чердак | Да |
| Терраса | Да |
| Балкон | Нет |
| Второй свет | - |
| Сауна | Нет |
Представляем вашему вниманию проект одноэтажного дома площадью 240 м² — идеальное решение для тех, кто ценит простор и комфорт. Этот дом станет прекрасным выбором для большой семьи, предлагая достаточно места для всех членов семьи и гостей.
Преимущества проекта
- Площадь и планировка: общая площадь дома составляет 240,36 м², что позволяет разместить все необходимые помещения для комфортной жизни. В доме предусмотрено четыре спальни и три ванные комнаты — всё это обеспечивает удобство и функциональность.
- Материал стен: дом построен из газобетона, который отличается высокой прочностью и долговечностью. Это гарантирует надёжность конструкции на долгие годы.
- Гараж на две машины: наличие гаража в проекте является важным преимуществом для владельцев автомобилей. Гараж рассчитан на два автомобиля, что особенно удобно для семей с несколькими машинами.
- Терраса: проект включает террасу, которая станет отличным местом для отдыха и проведения времени на свежем воздухе. Терраса предоставляет дополнительные возможности для организации пространства вокруг дома.
- Чердак: наличие чердака расширяет возможности использования жилого пространства. Это может быть дополнительным помещением для хранения вещей или даже рабочей зоной.
Стиль и комфорт
Проект выполнен в европейском стиле, который отличается лаконичностью форм и гармоничным сочетанием с окружающей природой. Такой стиль придаст вашему дому уникальный вид и создаст атмосферу уюта и комфорта.
Не упустите возможность стать обладателем просторного и функционального дома, который станет вашим надёжным убежищем и подарит радость жизни!
~~ТоварГаражейТекст~~