F-18035 - План одноэтажного дома 12 на 17, площадью 140 м² с террасой и 3 спальнями
| Параметр проекта | Значение |
|---|---|
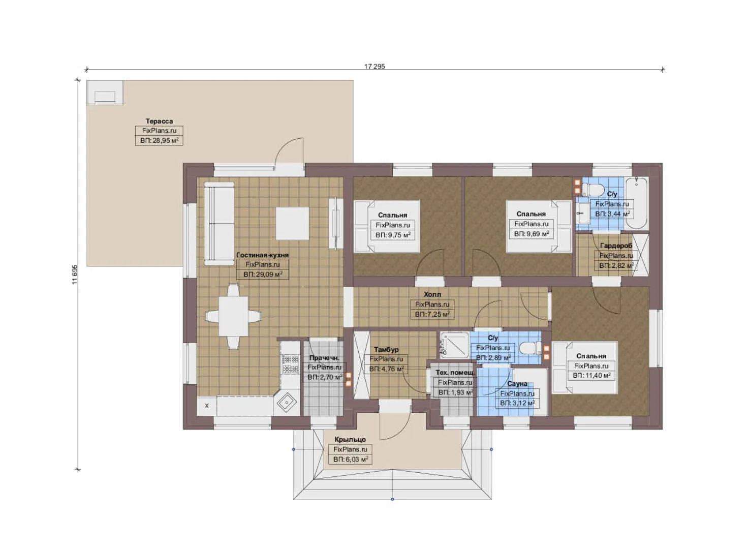
| Длина | 16.63 м |
| Ширина | 11.70 м |
| Этажность | 1 |
| Общая площадь | 137.64 м² |
| Площадь застройки | 194.57 м² |
| Кол-во спален | 3 |
| Количество ванных комнат | 2 |
| Стиль проекта | Европейский |
| Материал стен | Газобетон |
| Тип кровли | Скатная кровля |
| Наличие цокольного этажа | Нет |
| Наличие гаража | Нет |
| Машиноместа | - |
| Чердак | Да |
| Терраса | Да |
| Балкон | Нет |
| Второй свет | - |
| Сауна | Нет |
Проект одноэтажного дома F-18035 представляет собой отличное решение для тех, кто мечтает о просторном и уютном жилье. Дом площадью 140 м² с террасой и тремя спальнями станет настоящим украшением вашего участка.
Простор и функциональность
Дом имеет продуманную планировку, которая позволяет максимально эффективно использовать каждый квадратный метр пространства. Длина дома составляет 16,63 метра, а ширина — 11,70 метров. Общая площадь внутренних помещений — 137,64 м², что обеспечивает достаточно места для комфортной жизни всей семьи. Стены выполнены из газобетона, что гарантирует высокую прочность и долговечность конструкции.
Три спальни и две ванные комнаты
В доме предусмотрено три спальни, что идеально подходит для больших семей или тех, кто любит принимать гостей. Две ванные комнаты обеспечивают комфорт и удобство для всех жильцов. Наличие чердака добавляет дополнительные возможности для хранения вещей или организации рабочего пространства.
Европейский стиль и практичность
Стиль проекта — европейский, который отличается своей лаконичностью и функциональностью. Скатная кровля придаёт дому завершённый вид и защищает от погодных условий. Отсутствие цокольного этажа упрощает строительство и обслуживание дома.
Терраса для отдыха
Одним из главных преимуществ этого проекта является наличие террасы, где можно проводить время на свежем воздухе, устраивать семейные ужины или просто наслаждаться красивыми видами. Терраса станет отличным местом для отдыха и развлечений.
Выбирая проект F-18035, вы получаете не только просторный дом, но и возможность создать уютное и комфортное пространство для жизни.