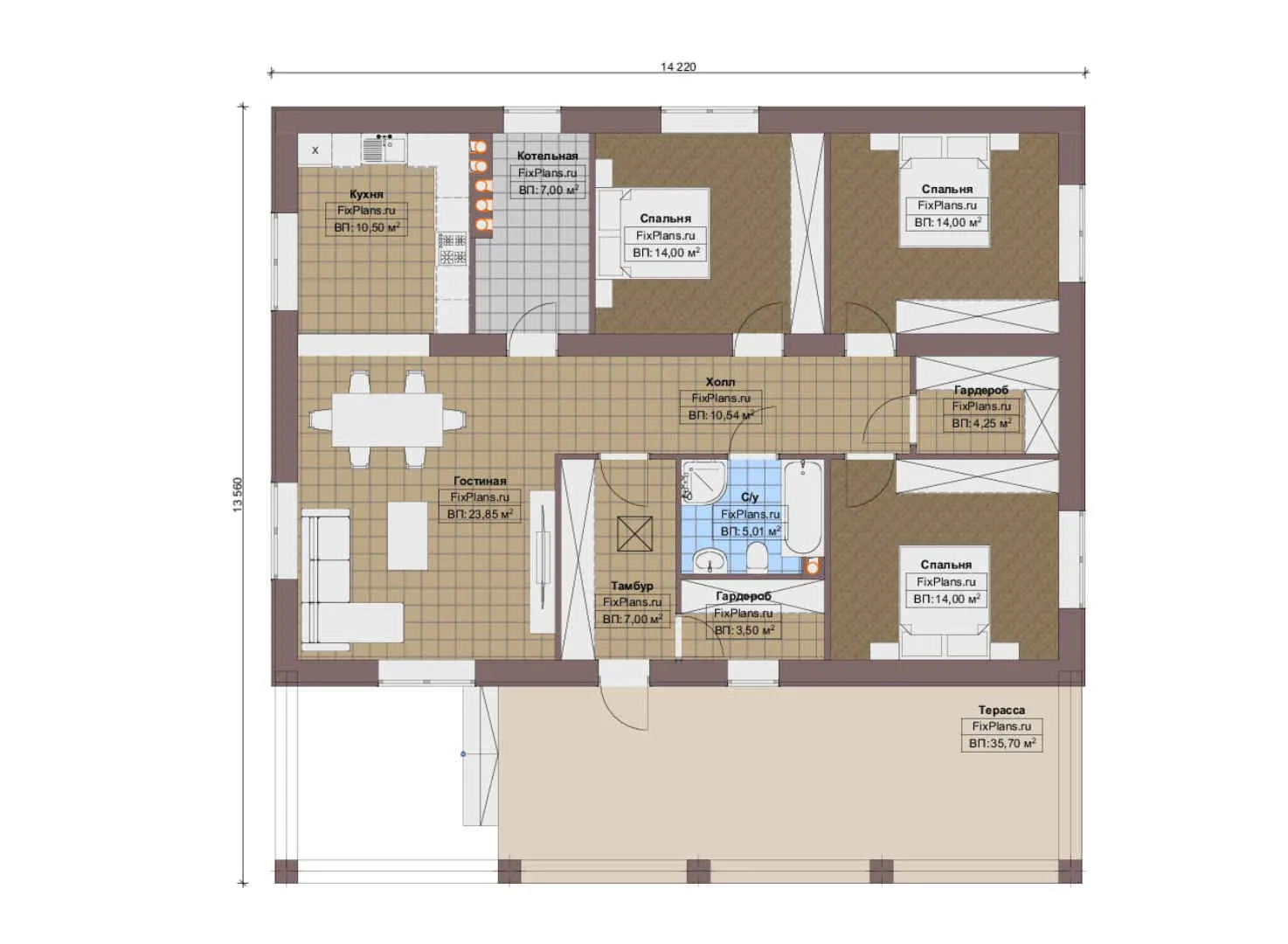
F-18305 - План одноэтажного дома 13 на 16, площадью 130 м² с 3 спальнями
| Параметр проекта | Значение |
|---|---|
| Длина | 15.48 м |
| Ширина | 12.02 м |
| Этажность | 1 |
| Общая площадь | 123.10 м² |
| Площадь застройки | 186.07 м² |
| Кол-во спален | 3 |
| Количество ванных комнат | 2 |
| Стиль проекта | Европейский |
| Материал стен | Газобетон |
| Тип кровли | Скатная кровля |
| Наличие цокольного этажа | Нет |
| Наличие гаража | Нет |
| Машиноместа | - |
| Чердак | Да |
| Терраса | Нет |
| Балкон | Нет |
| Второй свет | - |
| Сауна | Нет |
Проект одноэтажного дома площадью 130 м² с тремя спальнями представляет собой отличное решение для тех, кто ценит комфорт и практичность. Этот проект идеально подходит для строительства в условиях ограниченного пространства участка размером 13 на 16 метров.
Просторный и функциональный дом
Дом отличается продуманной планировкой, которая позволяет максимально эффективно использовать каждый квадратный метр площади. Общая площадь дома составляет 123,10 м², что обеспечивает достаточно места для комфортного проживания семьи. Высота потолков и продуманная планировка создают ощущение простора и свободы.
Европейские стандарты качества
Стиль проекта — европейский, что гарантирует высокое качество строительства и соответствие современным стандартам комфорта. Газобетонные стены обеспечивают отличную тепло- и звукоизоляцию, делая дом уютным и тихим местом для отдыха. Скатная кровля добавляет эстетику и завершённость внешнему виду дома.
Практичность и удобство
Отсутствие цокольного этажа упрощает процесс строительства и снижает затраты на дополнительные работы. Отсутствие гаража компенсируется возможностью организации парковочного места рядом с домом или в другом удобном месте. Наличие чердака предоставляет дополнительное пространство для хранения вещей или реализации творческих идей.
Преимущества проекта
Проект одноэтажного дома 13 на 16 предлагает множество преимуществ:
- Просторная планировка;
- Высокое качество строительства;
- Практичность и удобство использования пространства;
- Соответствие европейским стандартам качества.
Не упустите возможность построить дом своей мечты! Оставьте заявку на сайте, чтобы получить более подробную информацию о проекте и начать строительство уже сегодня.