F-1871 - Планы двухэтажного дома 11 на 19, площадью 230 м² с террасой, балконом, гаражом на 2 машины и 4 спальнями
| Параметр проекта | Значение |
|---|---|
| Длина | 10.42 м |
| Ширина | 18.42 м |
| Этажность | 2 |
| Общая площадь | 230.36 м² |
| Площадь застройки | 191.94 м² |
| Кол-во спален | 4 |
| Количество ванных комнат | 3 |
| Стиль проекта | Современный |
| Материал стен | Газобетон |
| Тип кровли | Плоская кровля |
| Наличие цокольного этажа | Нет |
| Наличие гаража | Да |
| Машиноместа | на 2 машины |
| Чердак | Нет |
| Терраса | Да |
| Балкон | Да |
| Второй свет | - |
| Сауна | Нет |
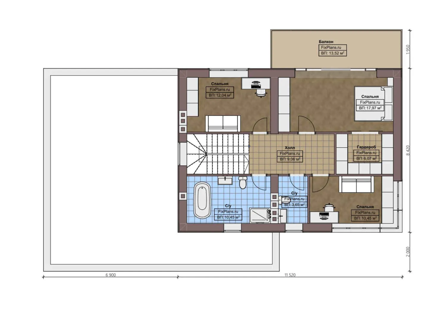
Проект F-1871 представляет собой двухэтажный дом площадью 230 м² с продуманной планировкой. Он идеально подходит для семей, которые ценят простор и комфорт. Длина здания составляет 10,42 м, а ширина — 18,42 м. Благодаря такой площади у вас будет достаточно места для всех членов семьи и гостей.
Многофункциональность
В доме предусмотрено четыре спальни, что делает его идеальным выбором для больших семей или тех, кто любит принимать гостей. Три ванные комнаты обеспечивают комфорт и удобство в повседневной жизни. Наличие террасы и балкона позволяет наслаждаться свежим воздухом и красивыми видами в любое время года.
Практичность и функциональность
Дом построен из газобетона, что обеспечивает надёжность и долговечность конструкции. Плоская кровля добавляет современный вид зданию и упрощает обслуживание. Отсутствие чердака и наличие гаража на две машины делают проект ещё более практичным и удобным для жизни.
Преимущества проекта F-1871
Проект F-1871 — это не просто дом, это пространство для жизни, наполненное комфортом и уютом. Современный стиль, продуманная планировка и функциональность делают его отличным выбором для тех, кто ценит качество и комфорт. Создайте свой идеальный дом с проектом F-1871!