F-1916 - Планы двухэтажного дома 13 на 14, площадью 280 м² с террасой и 5 спальнями
| Параметр проекта | Значение |
|---|---|
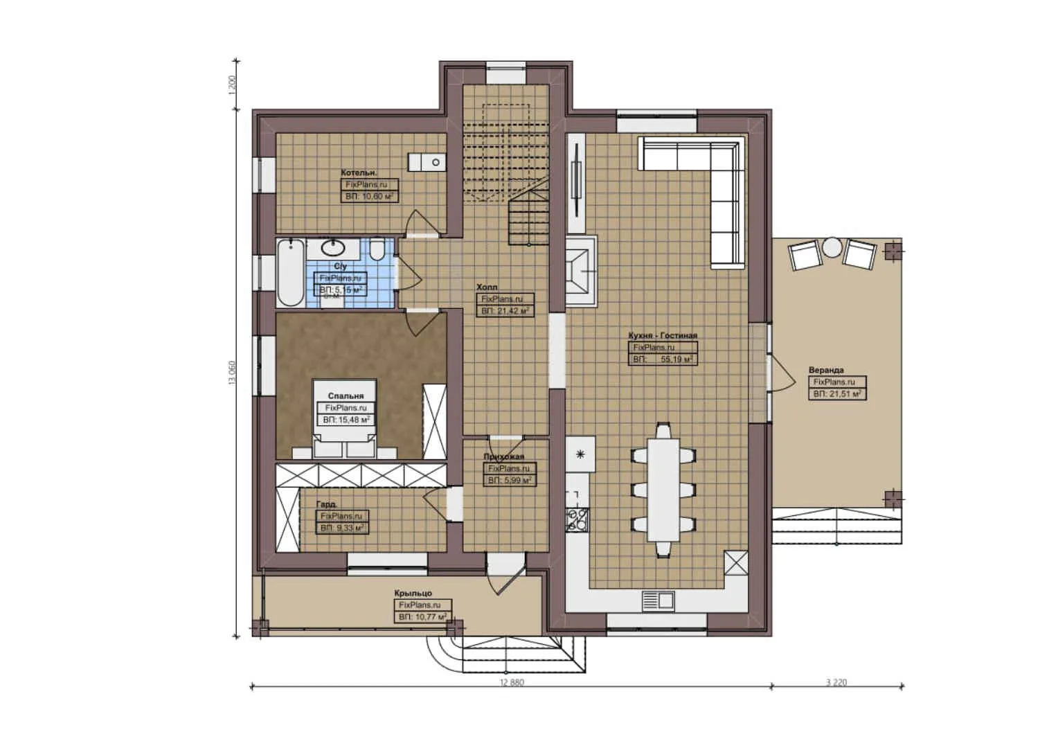
| Длина | 13.06 м |
| Ширина | 12.88 м |
| Этажность | 2 |
| Общая площадь | 271.11 м² |
| Площадь застройки | 168.21 м² |
| Кол-во спален | 5 |
| Количество ванных комнат | 2 |
| Стиль проекта | Европейский |
| Материал стен | Газобетон |
| Тип кровли | Скатная кровля |
| Наличие цокольного этажа | Нет |
| Наличие гаража | Нет |
| Машиноместа | - |
| Чердак | Да |
| Терраса | Да |
| Балкон | Нет |
| Второй свет | - |
| Сауна | Нет |
Проект F-1916 представляет собой двухэтажный дом площадью 280 м² с террасой. Это отличный выбор для тех, кто ищет комфортное жильё с продуманной планировкой. Дом имеет длину 13,06 м и ширину 12,88 м, что обеспечивает достаточно места для всех членов семьи.
Многофункциональность и комфорт
В доме предусмотрено пять спален и две ванные комнаты, что делает его идеальным выбором для больших семей или тех, кто любит принимать гостей. Наличие террасы добавляет дополнительное пространство для отдыха на свежем воздухе.
Европейский стиль и надёжность
Проект выполнен в европейском стиле с использованием качественных материалов. Стены из газобетона обеспечивают хорошую теплоизоляцию и долговечность конструкции. Скатная кровля придаёт дому элегантный вид и защищает от непогоды.
Дополнительные возможности
Дом имеет чердак, что позволяет использовать дополнительное пространство для хранения вещей или организации рабочего кабинета. Отсутствие гаража компенсируется возможностью обустройства парковочного места рядом с домом. Проект не предусматривает наличие сауны, но это может быть легко скорректировано под индивидуальные потребности владельца.
Не упустите возможность воплотить свою мечту о красивом и уютном доме! Оставьте заявку на этом сайте и получите подробную консультацию от наших специалистов.