F-19268 - Планы дома с мансардой 13 на 14, площадью 230 м² с террасой, балконом и 3 спальнями
| Параметр проекта | Значение |
|---|---|
| Длина | 12.72 м |
| Ширина | 13.44 м |
| Этажность | 1.5 |
| Общая площадь | 228.57 м² |
| Площадь застройки | 170.89 м² |
| Кол-во спален | 3 |
| Количество ванных комнат | 1 |
| Стиль проекта | Европейский |
| Материал стен | Газобетон |
| Тип кровли | Скатная кровля |
| Наличие цокольного этажа | Нет |
| Наличие гаража | Нет |
| Машиноместа | - |
| Чердак | Нет |
| Терраса | Да |
| Балкон | Да |
| Второй свет | - |
| Сауна | Нет |
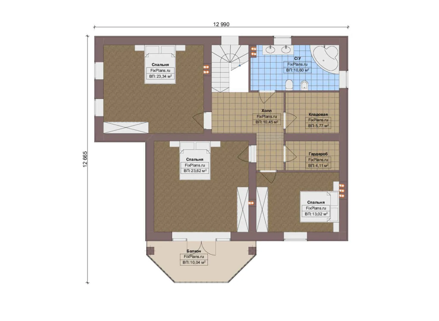
Представляем вам проект дома с мансардой — это идеальный выбор для тех, кто ценит комфорт и простор. Общая площадь составляет 230 м², что позволит разместить все необходимые помещения и создать уютное пространство для жизни. Длина дома — 12,72 м, ширина — 13,44 м, а этажность — 1,5 этажа.
Три спальни и одна ванная комната
В доме предусмотрено три спальни, что обеспечит комфортное проживание всей семьи. Одна ванная комната добавляет функциональности и удобства в использовании пространства. Этот проект станет отличным выбором для семей с детьми или тех, кто предпочитает иметь личное пространство для отдыха.
Европейский стиль и практичность
Стиль проекта — европейский, который отличается своей лаконичностью и практичностью. Стены выполнены из газобетона, что обеспечивает надёжность и долговечность конструкции. Скатная кровля придаёт дому элегантный вид и защищает от погодных условий. Отсутствие цокольного этажа упрощает строительство и эксплуатацию дома.
Терраса и балкон для отдыха
Одним из преимуществ этого проекта является наличие террасы и балкона. Терраса станет отличным местом для отдыха на свежем воздухе, а балкон — для утреннего кофе или вечерних посиделок. Эти элементы добавляют дому функциональность и эстетическую привлекательность.
Не упустите возможность создать дом своей мечты! Оставьте заявку на нашем сайте и получите более подробную информацию о проекте дома с мансардой.