F-19394 - Планы двухэтажного дома 13 на 17, площадью 260 м² с террасой и 6 спальнями
| Параметр проекта | Значение |
|---|---|
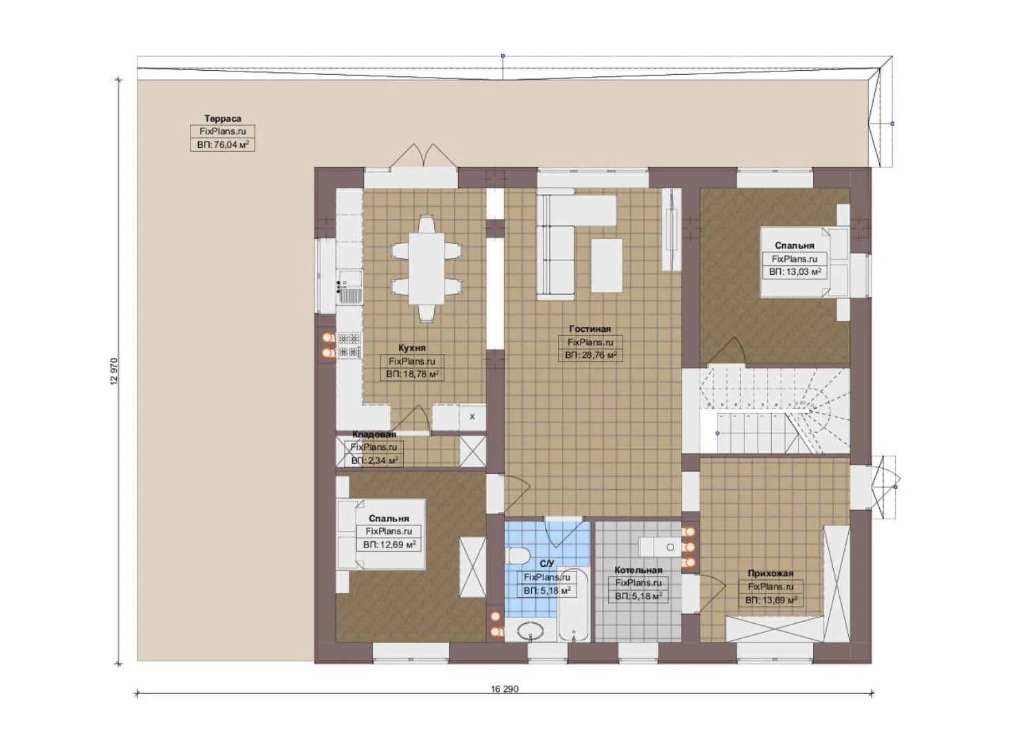
| Длина | 12.97 м |
| Ширина | 16.29 м |
| Этажность | 2 |
| Общая площадь | 258.10 м² |
| Площадь застройки | 211.28 м² |
| Кол-во спален | 6 |
| Количество ванных комнат | 3 |
| Стиль проекта | Европейский |
| Материал стен | Газобетон |
| Тип кровли | Скатная кровля |
| Наличие цокольного этажа | Нет |
| Наличие гаража | Нет |
| Машиноместа | - |
| Чердак | Да |
| Терраса | Да |
| Балкон | Нет |
| Второй свет | - |
| Сауна | Нет |
Проект двухэтажного дома площадью 260 м² предлагает достаточно места для комфортной жизни всей семьёй. Шесть спален и три ванные комнаты обеспечивают личное пространство каждому члену семьи, а общая площадь позволяет разместить все необходимые помещения.
Европейский стиль
Дизайн проекта выполнен в европейском стиле, что придаёт дому современный и элегантный вид. Газобетонные стены обеспечивают надёжность конструкции и хорошую теплоизоляцию, создавая уютное и комфортное жилое пространство.
Функциональность и практичность
Дом оснащён террасой, где можно проводить время на свежем воздухе и устраивать семейные мероприятия. Отсутствие цокольного этажа упрощает строительство и обслуживание дома, а наличие чердака добавляет дополнительные возможности для хранения или организации пространства.
Отсутствие гаража не ограничивает функциональность
Хотя в проекте нет гаража, это не снижает его практичности. Открытая планировка и продуманная структура позволяют легко организовать парковочные места рядом с домом, сохраняя при этом эстетику и удобство использования участка.
Не упустите возможность создать дом своей мечты! Оставьте заявку на нашем сайте и получите подробную информацию о проекте.