F-19844 - План одноэтажного дома 13 на 13, площадью 120 м² с 3 спальнями
45000 ₽
7-14 рабочих дней
F-19844
| Параметр проекта | Значение |
|---|---|
| Длина | 12.73 м |
| Ширина | 12.36 м |
| Этажность | 1 |
| Общая площадь | 114.39 м² |
| Площадь застройки | 157.28 м² |
| Кол-во спален | 3 |
| Количество ванных комнат | - |
| Стиль проекта | Европейский |
| Материал стен | Газобетон |
| Тип кровли | Скатная кровля |
| Наличие цокольного этажа | Нет |
| Наличие гаража | Нет |
| Машиноместа | - |
| Чердак | Да |
| Терраса | Нет |
| Балкон | Нет |
| Второй свет | - |
| Сауна | Нет |
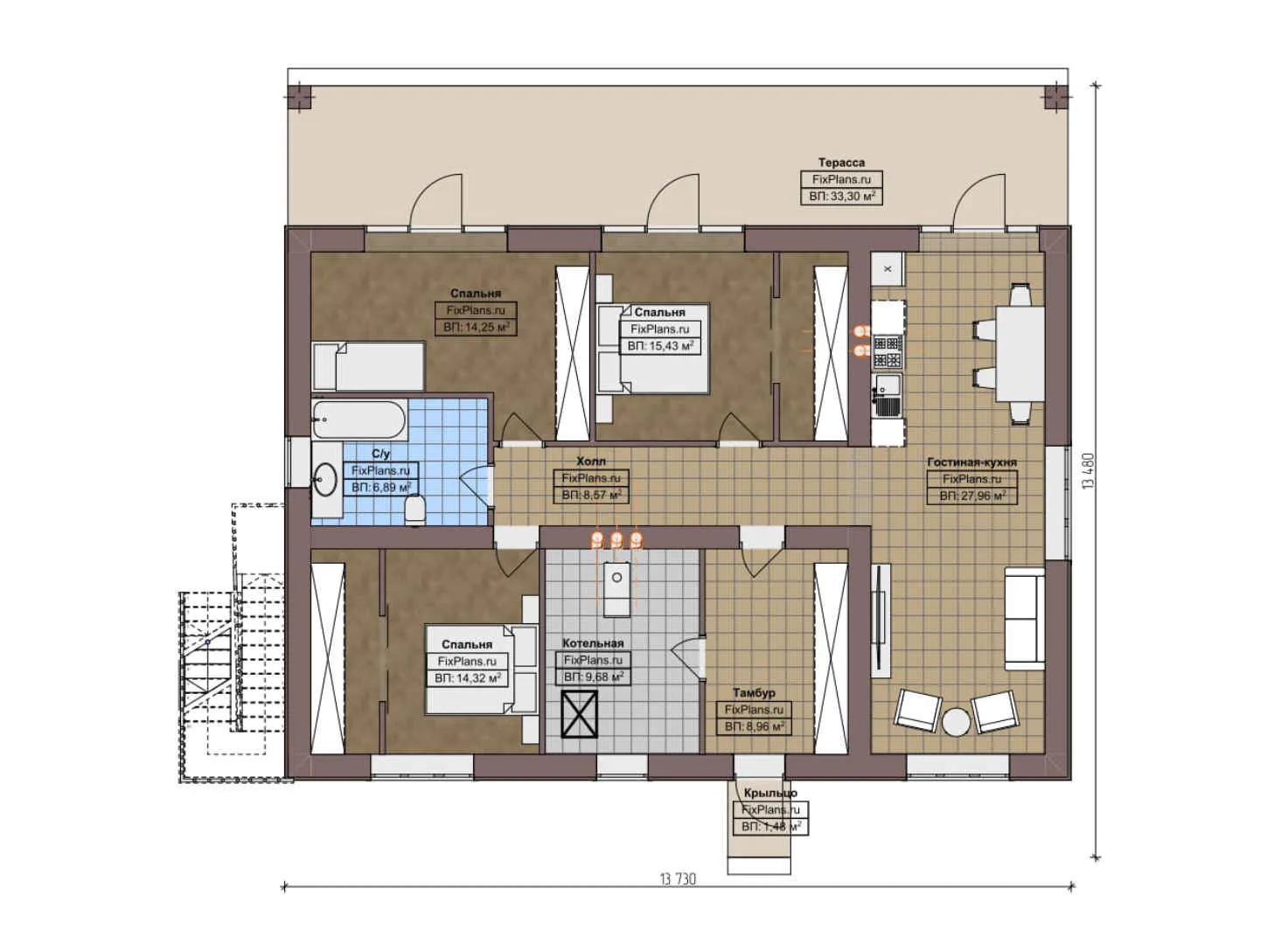
Представляем вашему вниманию проект одноэтажного дома площадью 120 м² с тремя спальнями. Этот дом станет идеальным решением для вашей семьи, предлагая комфортное проживание в просторном и светлом пространстве.
Основные характеристики проекта:
- Длина: 12,73 м;
- Ширина: 12,36 м;
- Этажность: 1 этаж;
- Общая площадь: 114,39 м²;
- Площадь застройки: 157,28 м².
Преимущества проекта:
- Простор и функциональность. Благодаря продуманной планировке, дом предлагает достаточно места для комфортного проживания. Три спальни обеспечивают удобство для всей семьи, а общая площадь позволяет разместить все необходимые помещения.
- Европейский стиль. Проект выполнен в европейском стиле, что придаёт дому современный и стильный вид. Газобетонные стены обеспечивают надёжность и долговечность конструкции.
- Наличие чердака. Наличие чердака расширяет возможности использования пространства дома, позволяя реализовать различные идеи для хранения или отдыха.
- Отсутствие террасы и балкона. Отсутствие террасы и балкона может быть преимуществом для тех, кто предпочитает более компактное и функциональное пространство. Это позволяет сосредоточиться на создании комфортной жилой среды внутри дома.
Выбор идеального проекта для вашей семьи
Этот проект одноэтажного дома станет отличным выбором для тех, кто ценит комфорт, практичность и современный стиль. Не упустите возможность создать дом своей мечты!
~~ТоварГаражейТекст~~