F-20735 - Планы двухэтажного дома 14 на 21, площадью 280 м² с террасой, балконом, гаражом на 1 машину и 4 спальнями
| Параметр проекта | Значение |
|---|---|
| Длина | 13.50 м |
| Ширина | 20.20 м |
| Этажность | 2 |
| Общая площадь | 273.86 м² |
| Площадь застройки | 272.70 м² |
| Кол-во спален | 4 |
| Количество ванных комнат | 2 |
| Стиль проекта | Райта |
| Материал стен | Газобетон |
| Тип кровли | Скатная кровля |
| Наличие цокольного этажа | Нет |
| Наличие гаража | Да |
| Машиноместа | на 1 машину |
| Чердак | Да |
| Терраса | Да |
| Балкон | Да |
| Второй свет | - |
| Сауна | Нет |
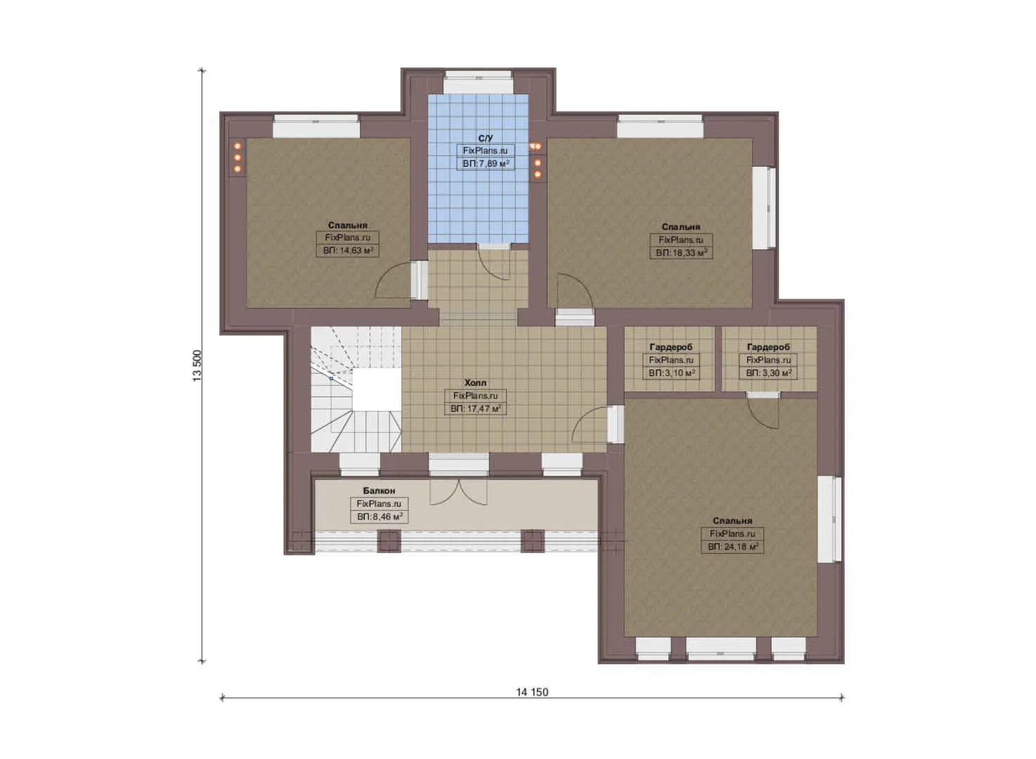
Двухэтажный дом площадью 280 м² — это идеальный выбор для большой семьи. Просторные комнаты и продуманная планировка позволят каждому члену семьи иметь своё личное пространство. Четыре спальни обеспечат комфортный отдых после насыщенного дня, а две ванные комнаты создадут ощущение уюта и чистоты.
Функциональность и практичность
Дом оснащён всем необходимым для комфортной жизни. Наличие гаража на одну машину обеспечит безопасность вашего автомобиля, а чердак станет дополнительным местом для хранения вещей. Балкон и терраса позволят наслаждаться свежим воздухом в любое время года.
Стиль и качество
Проект выполнен в стиле Райта, который отличается своей лаконичностью и функциональностью. Газобетонные стены обеспечивают надёжность и долговечность конструкции, а скатная кровля придаёт дому элегантный вид. Отсутствие цокольного этажа упрощает строительство и обслуживание дома.
Преимущества проекта
- Просторная площадь — 280 м² для комфортной жизни.
- Функциональная планировка с четырьмя спальнями и двумя ванными комнатами.
- Наличие гаража на одну машину.
- Возможность обустройства террасы и балкона.
- Стиль Райта, сочетающий лаконичность и функциональность.
Не упустите свой шанс стать обладателем этого замечательного дома!