F-2114 - Планы двухэтажного дома 14 на 16, площадью 240 м² с балконом, гаражом на 1 машину и 4 спальнями
| Параметр проекта | Значение |
|---|---|
| Длина | 13.50 м |
| Ширина | 15.28 м |
| Этажность | 2 |
| Общая площадь | 230.63 м² |
| Площадь застройки | 206.28 м² |
| Кол-во спален | 4 |
| Количество ванных комнат | 2 |
| Стиль проекта | Европейский |
| Материал стен | Газобетон |
| Тип кровли | Скатная кровля |
| Наличие цокольного этажа | Нет |
| Наличие гаража | Да |
| Машиноместа | на 1 машину |
| Чердак | Да |
| Терраса | Нет |
| Балкон | Да |
| Второй свет | - |
| Сауна | Нет |
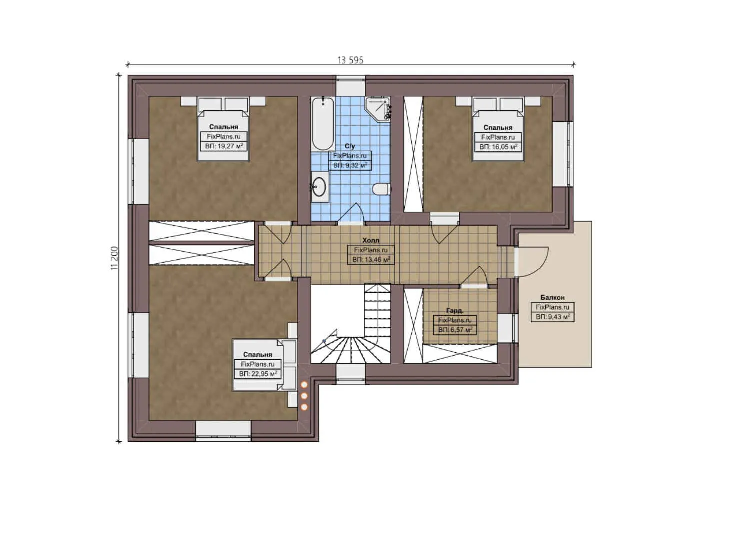
Проект двухэтажного дома F-2114 представляет собой идеальное решение для тех, кто ценит простор и комфорт. Общая площадь дома составляет 240 м², что позволяет создать функциональное пространство для всей семьи. Длина здания — 13,50 м, ширина — 15,28 м, а этажность — два этажа.
Практичность и функциональность
Дом F-2114 обладает продуманной планировкой, которая включает в себя четыре спальни и две ванные комнаты. Это обеспечивает комфортное проживание для всей семьи и гостей. Наличие гаража на одно машиноместо делает проект ещё более практичным и удобным в использовании.
Европейский стиль и надёжность
Стиль проекта — европейский, что придаёт дому современный и элегантный вид. Материал стен — газобетон, который отличается высокой прочностью и долговечностью. Скатная кровля обеспечивает надёжную защиту от погодных условий. Отсутствие цокольного этажа упрощает строительство и эксплуатацию дома.
Дополнительные возможности для отдыха
Наличие чердака предоставляет дополнительные возможности для хранения вещей или организации пространства под личные нужды. Балкон станет прекрасным местом для отдыха и наслаждения видами. Этот проект сочетает в себе практичность, комфорт и эстетику, делая его идеальным выбором для вашего будущего дома.