F-2159 - Планы двухэтажного дома 9 на 10, площадью 140 м² с террасой, баней и 3 спальнями
| Параметр проекта | Значение |
|---|---|
| Длина | 8.38 м |
| Ширина | 9.38 м |
| Этажность | 2 |
| Общая площадь | 131.48 м² |
| Площадь застройки | 78.60 м² |
| Кол-во спален | 3 |
| Количество ванных комнат | 1 |
| Стиль проекта | Европейский |
| Материал стен | Газобетон |
| Тип кровли | Скатная кровля |
| Наличие цокольного этажа | Нет |
| Наличие гаража | Нет |
| Машиноместа | - |
| Чердак | Да |
| Терраса | Да |
| Балкон | Нет |
| Второй свет | - |
| Сауна | Да |
Ищете проект дома, который будет сочетать в себе комфорт, функциональность и стильный дизайн? Предлагаем вашему вниманию проект F-2159 — двухэтажный дом площадью 140 м² с террасой, баней и тремя спальнями. Этот проект станет отличным решением для тех, кто ценит простор и удобство.
Простор и функциональность
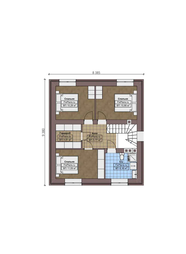
Проект F-2159 предлагает продуманную планировку, которая позволяет максимально эффективно использовать каждый квадратный метр пространства. Общая площадь дома составляет 131,48 м², что обеспечивает достаточно места для комфортной жизни большой семьи. При этом площадь застройки — 78,60 м², что делает проект особенно привлекательным для владельцев небольших участков.
Европейский стиль и комфорт
Дом выполнен в европейском стиле, который отличается лаконичностью форм и использованием натуральных материалов. Газобетонные стены обеспечивают отличную теплоизоляцию, а скатная кровля придаёт дому современный вид. Наличие чердака расширяет возможности для хранения или обустройства дополнительного пространства.
Дополнительные удобства
Одним из главных преимуществ проекта является наличие террасы — идеального места для отдыха на свежем воздухе. Также в доме предусмотрена сауна, которая станет отличным дополнением к отдыху и поможет расслабиться после рабочего дня. Отсутствие гаража компенсируется возможностью организации парковочного места рядом с домом.
Преимущества проекта F-2159
Проект F-2159 сочетает в себе все необходимые удобства для комфортной жизни: просторные спальни, удобная ванная комната, терраса для отдыха и сауна для релаксации. Этот проект станет не только вашим уютным домом, но и гордостью вашего участка. Не упустите возможность воплотить свою мечту о загородной жизни с проектом F-2159!