F-2366 - Планы двухэтажного дома 7 на 10, площадью 100 м² с террасой и 3 спальнями
| Параметр проекта | Значение |
|---|---|
| Длина | 6.62 м |
| Ширина | 9.38 м |
| Этажность | 2 |
| Общая площадь | 99.81 м² |
| Площадь застройки | 62.10 м² |
| Кол-во спален | 3 |
| Количество ванных комнат | 1 |
| Стиль проекта | Современный |
| Материал стен | Газобетон |
| Тип кровли | Плоская кровля |
| Наличие цокольного этажа | Нет |
| Наличие гаража | Нет |
| Машиноместа | - |
| Чердак | Нет |
| Терраса | Да |
| Балкон | Нет |
| Второй свет | - |
| Сауна | Нет |
Проект F-2366 представляет собой двухэтажный дом площадью 100 м² в современном стиле. Этот проект отличается продуманной планировкой, которая обеспечивает комфортное проживание для всей семьи. Современный стиль дома подчеркнёт вашу индивидуальность и станет украшением вашего участка.
Просторная планировка
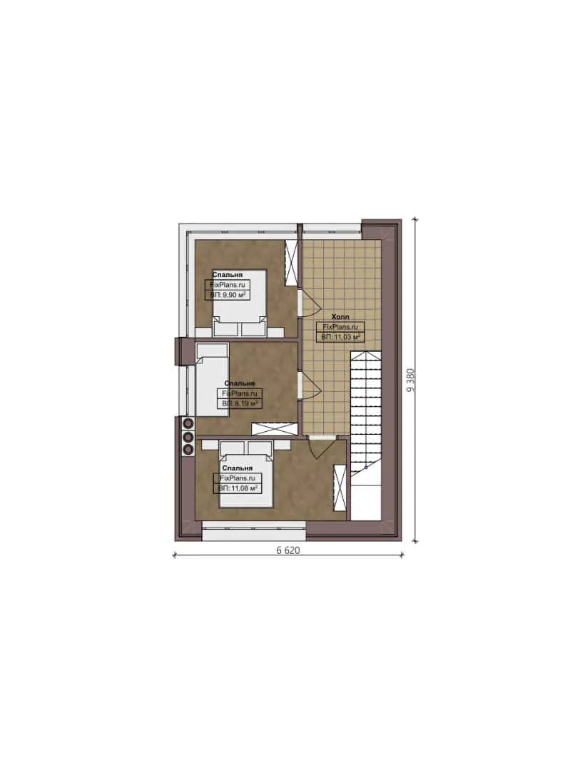
Длина дома составляет 6,62 метра, а ширина — 9,38 метра. Благодаря такой планировке вы сможете разместить все необходимые помещения и создать уютное пространство для отдыха. Три спальни и одна ванная комната обеспечивают удобство и комфорт для всех членов семьи. Отсутствие чердака и цокольного этажа позволяет оптимизировать внутреннее пространство под ваши нужды.
Терраса для отдыха
Одним из преимуществ проекта является наличие террасы, которая станет отличным местом для отдыха на свежем воздухе. Терраса предоставляет дополнительные возможности для обустройства зоны отдыха или даже небольшой садовой мебели. Это идеальное место для утреннего кофе или вечерних посиделок с семьёй и друзьями.
Газобетонный дом — надёжность и теплоизоляция
Стены дома выполнены из газобетона, что обеспечивает отличную теплоизоляцию и долговечность конструкции. Плоская кровля добавляет современный акцент и упрощает обслуживание крыши. Отсутствие гаража не ограничивает функциональность проекта, позволяя вам выбрать оптимальное решение для вашего участка.
Выбирая проект F-2366, вы получаете современное, комфортное и функциональное жильё, которое станет вашим уютным домом на долгие годы.