F-2537 - Планы двухэтажного дома 14 на 15, площадью 300 м² с террасой, гаражом на 1 машину и 5 спальнями
| Параметр проекта | Значение |
|---|---|
| Длина | 13.10 м |
| Ширина | 14.90 м |
| Этажность | 2 |
| Общая площадь | 297.28 м² |
| Площадь застройки | 195.19 м² |
| Кол-во спален | 5 |
| Количество ванных комнат | 3 |
| Стиль проекта | Европейский |
| Материал стен | Керамический поризованный блок |
| Тип кровли | Скатная кровля |
| Наличие цокольного этажа | Нет |
| Наличие гаража | Да |
| Машиноместа | на 1 машину |
| Чердак | Да |
| Терраса | Да |
| Балкон | Нет |
| Второй свет | - |
| Сауна | Нет |
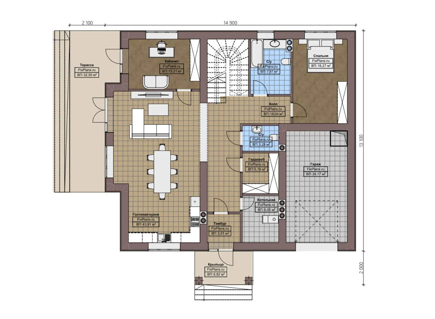
Проект F-2537 представляет собой двухэтажный дом площадью 300 м² с продуманной планировкой. Здесь предусмотрено пять спален, что делает его отличным выбором для больших семей или тех, кто любит принимать гостей. Общая площадь дома позволяет разместить все необходимые помещения и создать уютное пространство для жизни.
Функциональность и практичность
Дом оснащён террасой, где можно проводить время на свежем воздухе, устраивать семейные вечера или просто наслаждаться утренним кофе в тишине природы. Наличие гаража на одну машину обеспечивает удобство хранения автомобиля и защиту от неблагоприятных погодных условий. Чердак добавляет дополнительное пространство для хранения вещей или организации рабочего места.
Европейский стиль и надёжность конструкции
Стиль проекта — европейский, что придаёт дому современный и элегантный вид. Стены выполнены из керамического поризованного блока, обеспечивающего высокую прочность и долговечность конструкции. Скатная кровля защищает дом от осадков и подчёркивает его архитектурную выразительность.
Оптимальное использование пространства
Планировка дома продумана до мелочей, чтобы максимально эффективно использовать каждый квадратный метр. Площадь застройки составляет 195,19 м², что позволяет создать комфортное жилое пространство без лишних затрат на строительство. Три ванные комнаты обеспечивают удобство для всех членов семьи.
Не упустите возможность стать обладателем этого замечательного проекта! Оставьте заявку прямо сейчас и начните воплощать свою мечту в реальность.