F-3473 - Планы дома с мансардой 7 на 10, площадью 100 м² с 2 спальнями
| Параметр проекта | Значение |
|---|---|
| Длина | 6.94 м |
| Ширина | 9.94 м |
| Этажность | 1.5 |
| Общая площадь | 97.29 м² |
| Площадь застройки | 68.98 м² |
| Кол-во спален | 2 |
| Количество ванных комнат | 1 |
| Стиль проекта | Европейский |
| Материал стен | Газобетон |
| Тип кровли | Скатная кровля |
| Наличие цокольного этажа | Нет |
| Наличие гаража | Нет |
| Машиноместа | - |
| Чердак | Нет |
| Терраса | Нет |
| Балкон | Нет |
| Второй свет | - |
| Сауна | Нет |
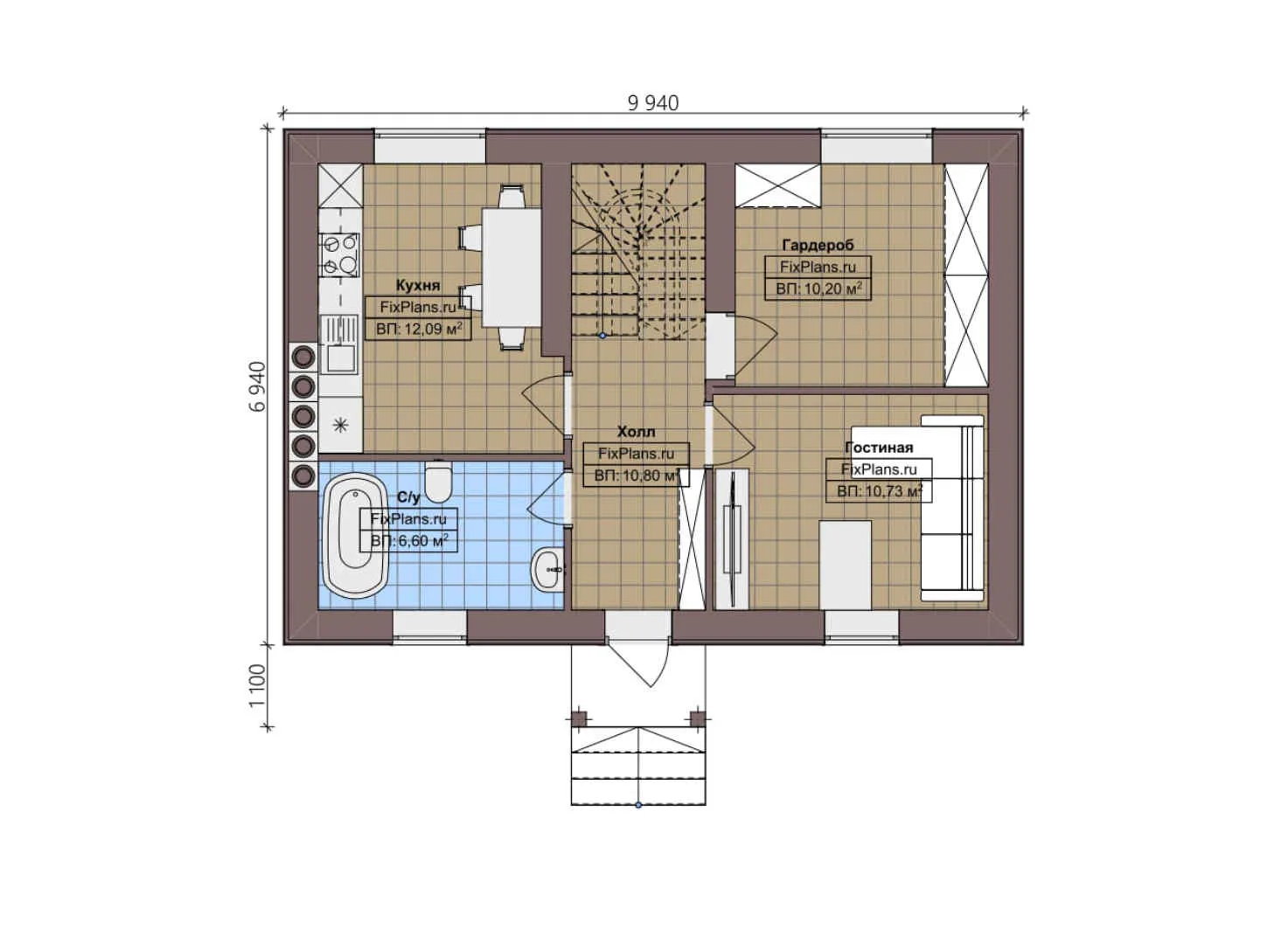
Проект дома F-3473 представляет собой отличное решение для тех, кто мечтает о собственном уютном доме с мансардой. Этот проект отличается продуманной планировкой и функциональностью, что делает его идеальным выбором для строительства на вашем участке.
Просторный и функциональный дом
Общая площадь проекта составляет 97,29 м², а площадь застройки — 68,98 м². Это позволяет разместить все необходимые помещения и создать комфортное пространство для жизни. Дом имеет европейскую стилистику, что придаёт ему современный и элегантный вид. Газобетонные стены обеспечивают отличную теплоизоляцию и долговечность конструкции.
Планировка и удобства
Дом рассчитан на два этажа, включая мансарду. В нём предусмотрена одна ванная комната, что удобно для повседневного использования. Отсутствие цокольного этажа и гаража упрощает строительство и позволяет более рационально использовать пространство участка. Также в проекте нет террасы, балкона или второго света, но это не мешает создать уютное и функциональное жилое пространство.
Преимущества проекта
Одним из главных преимуществ этого проекта является его компактность и эффективность использования пространства. Длина дома составляет 6,94 м, а ширина — 9,94 м, что позволяет разместить все необходимые помещения на небольшом участке. Кроме того, проект не требует наличия гаража или дополнительных машиномест, что также упрощает строительство и снижает затраты.
Не упустите возможность построить свой идеальный дом с мансардой! Проект F-3473 предлагает отличное решение для тех, кто ценит комфорт, функциональность и европейскую стилистику в архитектуре.