F-3491 - Планы двухэтажного дома 9 на 10, площадью 160 м² с террасой и 4 спальнями
| Параметр проекта | Значение |
|---|---|
| Длина | 9.69 м |
| Ширина | 8.89 м |
| Этажность | 2 |
| Общая площадь | 157.42 м² |
| Площадь застройки | 86.14 м² |
| Кол-во спален | 4 |
| Количество ванных комнат | 2 |
| Стиль проекта | Европейский |
| Материал стен | Газобетон |
| Тип кровли | Скатная кровля |
| Наличие цокольного этажа | Нет |
| Наличие гаража | Нет |
| Машиноместа | - |
| Чердак | Да |
| Терраса | Да |
| Балкон | Нет |
| Второй свет | - |
| Сауна | Нет |
Ищете комфортное жильё для большой семьи? Представляем вам проект F-3491 — двухэтажный дом площадью 160 м² с террасой и четырьмя спальнями. Этот проект станет отличным выбором для тех, кто ценит простор и функциональность.
Просторный и функциональный
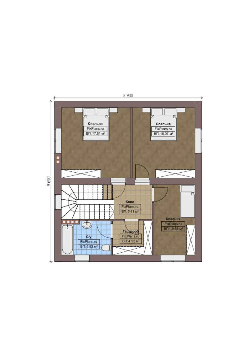
Проект F-3491 отличается продуманной планировкой, которая позволяет максимально эффективно использовать каждый квадратный метр пространства. Общая площадь дома составляет 157,42 м², а площадь застройки — 86,14 м². Это обеспечивает достаточно места для комфортного проживания всей семьи.
Европейские традиции в каждом доме
Стиль проекта F-3491 вдохновлён европейскими традициями строительства. Газобетонные стены обеспечивают отличную теплоизоляцию и долговечность конструкции. Скатная кровля придаёт дому элегантный вид и защищает от непогоды.
Всё для комфортной жизни
В проекте предусмотрены четыре спальни, две ванные комнаты, чердак и терраса. Наличие террасы позволяет обустроить дополнительное пространство для отдыха и развлечений на свежем воздухе. Отсутствие гаража компенсируется возможностью организации парковочного места рядом с домом.
Преимущества проекта F-3491
Проект F-3491 предлагает множество преимуществ:
- Просторная планировка;
- Европейская архитектура;
- Качественные материалы;
- Функциональные решения для комфортной жизни.
Не упустите возможность воплотить свою мечту о собственном доме!