F-3851 - Планы дома с мансардой 10 на 10, площадью 180 м² с террасой, балконом и 4 спальнями
| Параметр проекта | Значение |
|---|---|
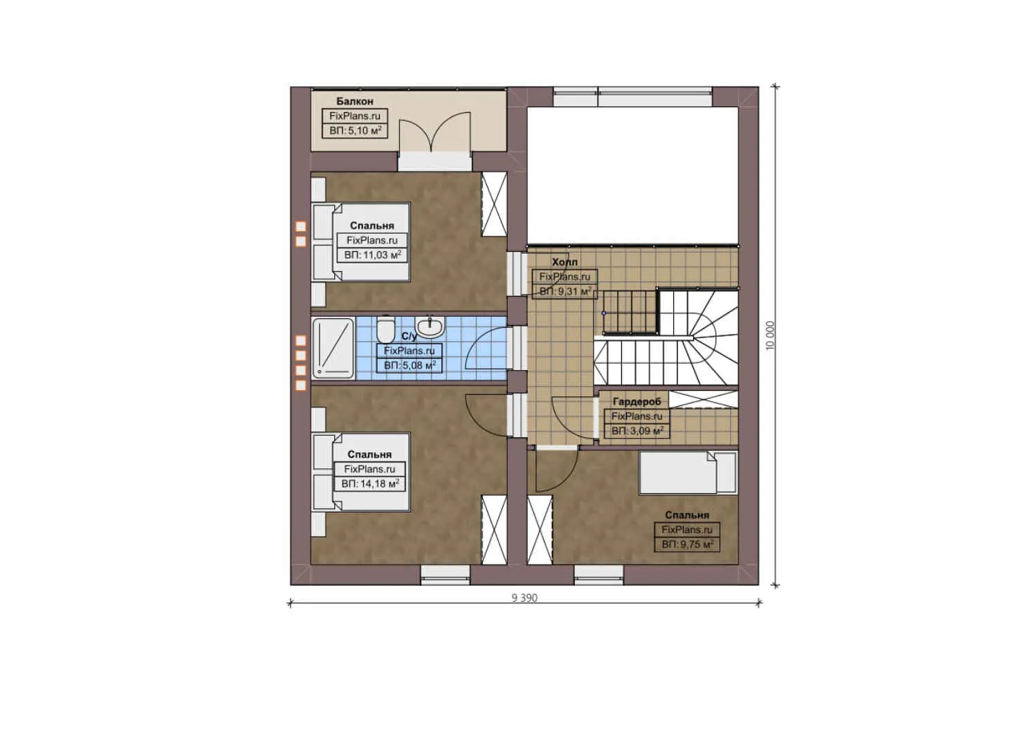
| Длина | 9.39 м |
| Ширина | 10.00 м |
| Этажность | 1.5 |
| Общая площадь | 171.12 м² |
| Площадь застройки | 93.90 м² |
| Кол-во спален | 4 |
| Количество ванных комнат | 2 |
| Стиль проекта | Европейский |
| Материал стен | Газобетон |
| Тип кровли | Скатная кровля |
| Наличие цокольного этажа | Нет |
| Наличие гаража | Нет |
| Машиноместа | - |
| Чердак | Нет |
| Терраса | Да |
| Балкон | Да |
| Второй свет | - |
| Сауна | Нет |
Проект дома F-3851 представляет собой идеальное решение для тех, кто ценит простор и функциональность. Дом имеет площадь 180 м² и продуманную планировку, которая позволяет максимально эффективно использовать каждый квадратный метр. Длина здания составляет 9,39 м, а ширина — 10 м, что обеспечивает комфортное размещение всех необходимых помещений.
Европейские традиции в каждом элементе
Стиль проекта — европейский, что гарантирует высокое качество исполнения и внимание к деталям. Газобетонные стены обеспечивают отличную тепло- и звукоизоляцию, создавая комфортные условия для проживания. Скатная кровля придаёт дому элегантный вид и защищает от непогоды.
Многофункциональность пространства
В доме предусмотрено четыре спальни и две ванные комнаты, что делает его идеальным выбором для семей с детьми или тех, кто предпочитает комфортное размещение гостей. Наличие террасы и балкона позволяет наслаждаться свежим воздухом и красивыми видами в любое время года. Отсутствие цокольного этажа упрощает строительство и обслуживание дома.
Преимущества проекта F-3851
Проект F-3851 предлагает множество преимуществ: продуманная планировка, высокое качество исполнения, комфорт и функциональность. Этот дом станет не только уютным жильём, но и гордостью его владельцев. Не упустите возможность воплотить свои мечты о доме в реальность — выберите проект F-3851 и наслаждайтесь каждым днём в новом доме!