F-4022 - Планы дома с мансардой 10 на 10, площадью 130 м² с балконом и 4 спальнями
| Параметр проекта | Значение |
|---|---|
| Длина | 9.18 м |
| Ширина | 9.18 м |
| Этажность | 1.5 |
| Общая площадь | 125.52 м² |
| Площадь застройки | 84.27 м² |
| Кол-во спален | 4 |
| Количество ванных комнат | 2 |
| Стиль проекта | Европейский |
| Материал стен | Газобетон |
| Тип кровли | Скатная кровля |
| Наличие цокольного этажа | Нет |
| Наличие гаража | Нет |
| Машиноместа | - |
| Чердак | Нет |
| Терраса | Нет |
| Балкон | Да |
| Второй свет | - |
| Сауна | Нет |
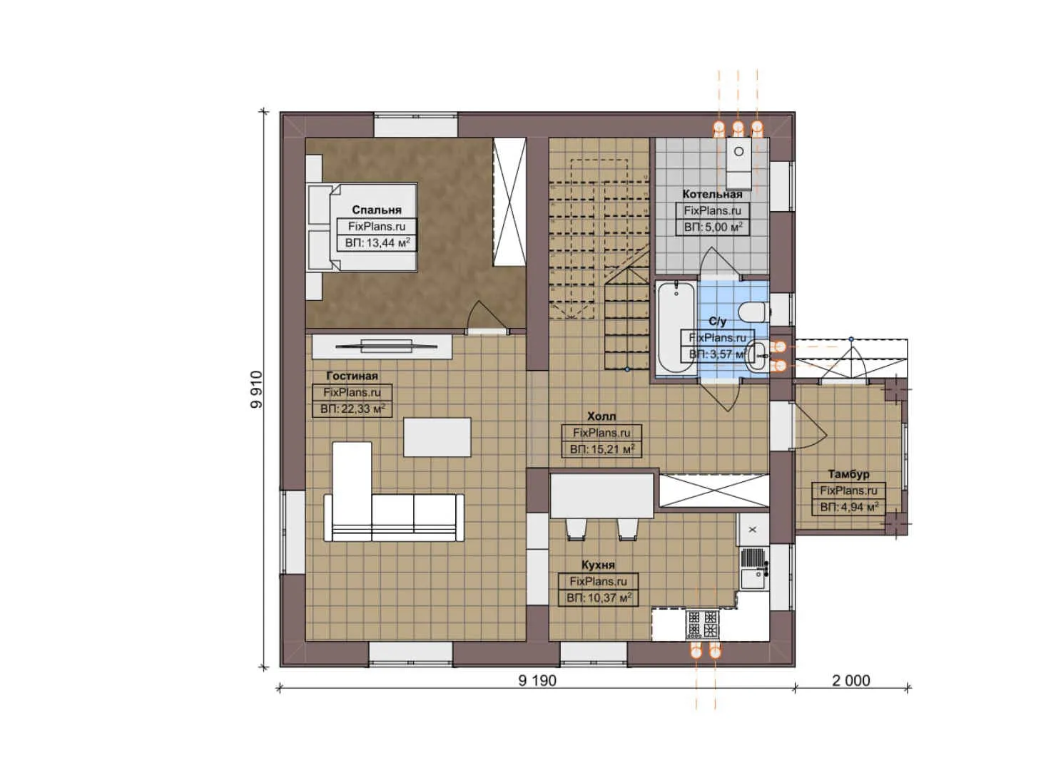
Проект F-4022 представляет собой дом с мансардой размером 10 на 10 метров, общей площадью 130 м². Этот проект станет отличным выбором для тех, кто ценит комфорт и функциональность.
Просторный и светлый дом
Дом имеет два этажа, включая мансарду, что позволяет максимально эффективно использовать каждый квадратный метр пространства. Длина и ширина дома составляют по 9,18 метра, создавая гармоничную прямоугольную форму. Общая площадь — 125,52 м², а площадь застройки — 84,27 м². Это обеспечивает достаточно места для размещения всех необходимых помещений и создания комфортной жилой среды.
Четыре спальни и две ванные комнаты
В доме предусмотрено четыре спальни, что идеально подходит для больших семей или тех, кто любит принимать гостей. Две ванные комнаты обеспечивают удобство использования пространства и позволяют избежать очередей по утрам.
Европейский стиль и надёжные материалы
Проект выполнен в европейском стиле, который отличается лаконичностью форм и использованием натуральных материалов. Стены дома изготовлены из газобетона, что обеспечивает отличную тепло- и звукоизоляцию. Скатная кровля придаёт дому современный вид и защищает от атмосферных осадков.
Балкон для вашего отдыха
Одним из преимуществ проекта является наличие балкона, где можно наслаждаться свежим воздухом и видами. Это идеальное место для утреннего кофе или вечерних прогулок на свежем воздухе.
Не упустите возможность создать свой идеальный дом с проектом F-4022!