F-4202 - Планы двухэтажного дома 11 на 11, площадью 200 м² с террасой и 5 спальнями
| Параметр проекта | Значение |
|---|---|
| Длина | 10.08 м |
| Ширина | 10.96 м |
| Этажность | 2 |
| Общая площадь | 197.93 м² |
| Площадь застройки | 110.48 м² |
| Кол-во спален | 5 |
| Количество ванных комнат | 2 |
| Стиль проекта | Европейский |
| Материал стен | Газобетон |
| Тип кровли | Скатная кровля |
| Наличие цокольного этажа | Нет |
| Наличие гаража | Нет |
| Машиноместа | - |
| Чердак | Да |
| Терраса | Да |
| Балкон | Нет |
| Второй свет | - |
| Сауна | Нет |
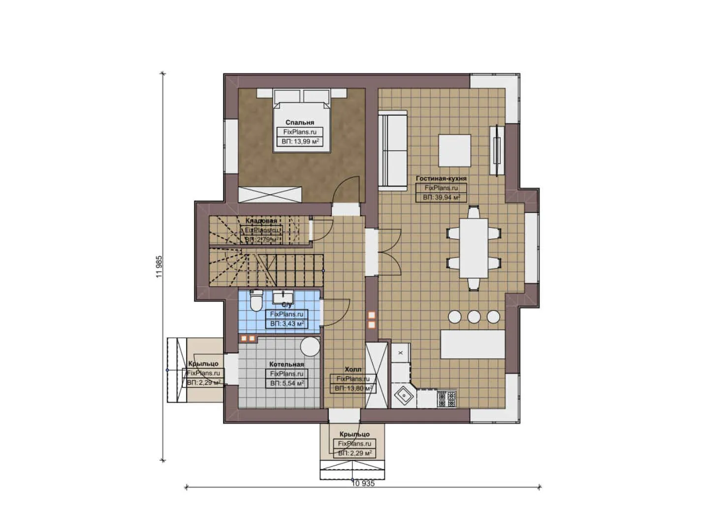
Проект F-4202 представляет собой двухэтажный дом площадью 200 м² с террасой, который станет идеальным решением для большой семьи. Благодаря своей просторной планировке, этот проект предлагает достаточно места для комфортного проживания всех членов семьи. Пять спален обеспечивают каждому члену семьи личное пространство, а две ванные комнаты гарантируют удобство и комфорт в повседневной жизни.
Европейский стиль и надёжность
Стиль проекта — европейский, что придаёт ему изысканность и элегантность. Газобетонные стены обеспечивают высокую прочность и долговечность конструкции, гарантируя надёжность и устойчивость дома на протяжении многих лет. Скатная кровля добавляет завершённости облику здания, подчёркивая его архитектурные достоинства.
Функциональность и практичность
Наличие чердака расширяет возможности использования пространства, позволяя реализовать различные идеи для хранения или отдыха. Терраса предоставляет дополнительное место для отдыха на свежем воздухе, что особенно ценно в тёплое время года. Отсутствие балкона компенсируется наличием террасы, которая становится полноценной альтернативой. Отсутствие гаража не является недостатком, так как проект ориентирован на создание комфортного жилого пространства внутри дома.
Преимущества проекта F-4202
Проект двухэтажного дома 11 на 11 с террасой и пятью спальнями предлагает множество преимуществ для будущих владельцев. Просторная планировка, европейский стиль, надёжные материалы и функциональность делают этот проект идеальным выбором для тех, кто ценит комфорт и качество жизни. Не упустите возможность создать свой идеальный дом с проектом F-4202!