F-4229 - Планы двухэтажного дома 10 на 12, площадью 180 м² с 6 спальнями
| Параметр проекта | Значение |
|---|---|
| Длина | 9.71 м |
| Ширина | 11.71 м |
| Этажность | 2 |
| Общая площадь | 171.46 м² |
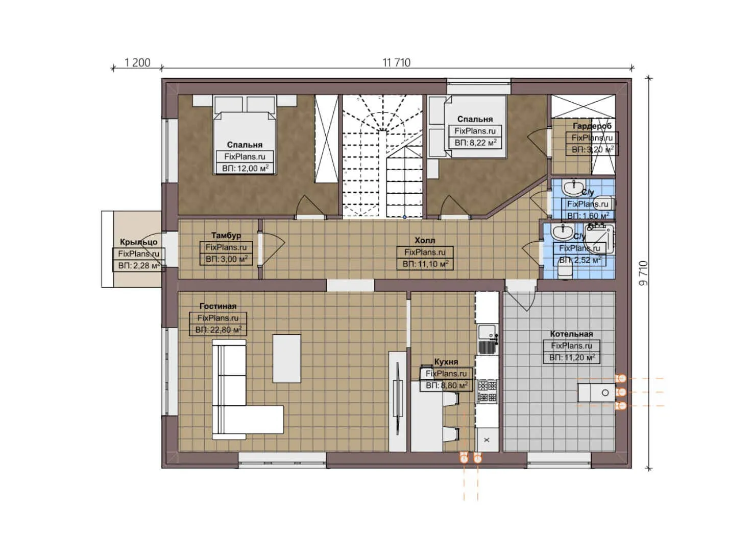
| Площадь застройки | 113.70 м² |
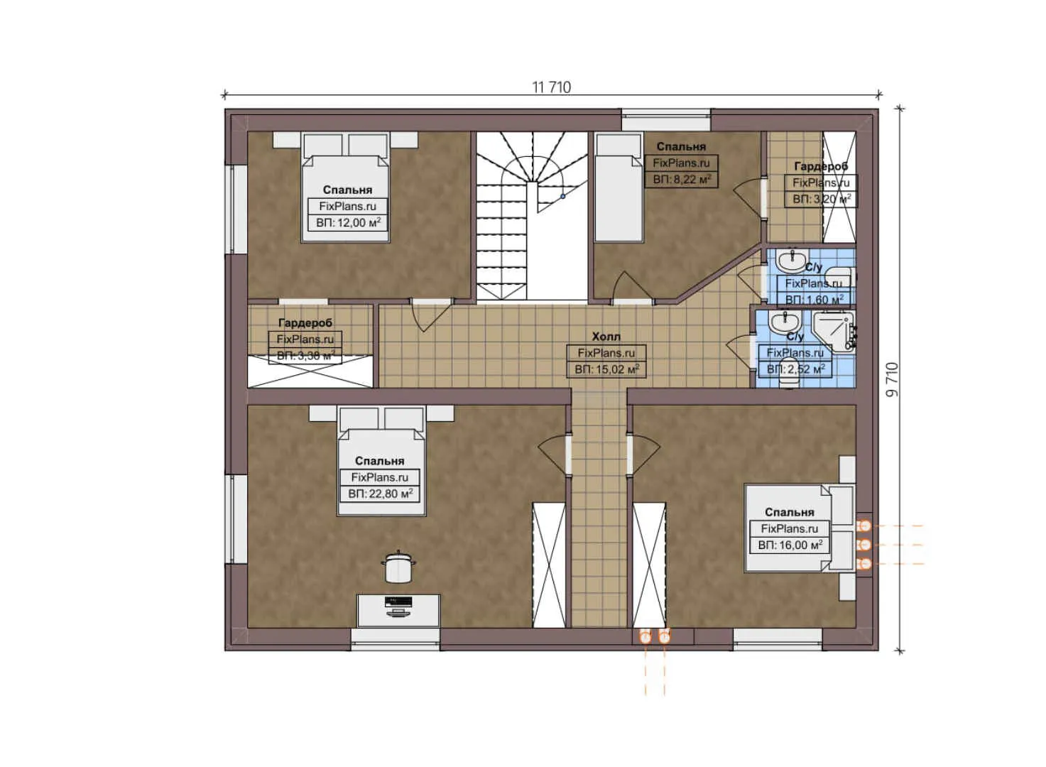
| Кол-во спален | 6 |
| Количество ванных комнат | 4 |
| Стиль проекта | Современный |
| Материал стен | Газобетон |
| Тип кровли | Плоская кровля |
| Наличие цокольного этажа | Нет |
| Наличие гаража | Нет |
| Машиноместа | - |
| Чердак | Нет |
| Терраса | Нет |
| Балкон | Нет |
| Второй свет | - |
| Сауна | Нет |
Проект двухэтажного дома площадью 180 м² с шестью спальнями представляет собой отличное решение для тех, кто ценит простор и комфорт. Этот проект идеально подходит для семей, где каждый член хочет иметь своё личное пространство. Шесть спален обеспечивают комфортное размещение всех членов семьи, а также гостей.
Функциональность и практичность
Дом спроектирован так, чтобы максимально использовать каждое доступное пространство. Плоская кровля и отсутствие чердака позволяют оптимизировать внутреннее пространство под нужды жильцов. Отсутствие гаража компенсируется удобством планировки самого дома, где каждая деталь продумана для вашего комфорта.
Современный стиль и надёжность
Стены из газобетона обеспечивают высокую тепло- и звукоизоляцию, делая дом не только комфортным, но и энергоэффективным. Современный стиль проекта подчеркнёт ваш вкус и станет украшением участка. Этот проект сочетает в себе практичность и эстетику, что делает его отличным выбором для строительства вашего будущего дома.
Преимущества планировки
Планировка дома продумана до мелочей. Площадь застройки составляет 113,7 м², что позволяет разместить все необходимые помещения. Отсутствие цокольного этажа упрощает строительство и обслуживание дома. Этот проект станет вашим уютным гнёздышком, где вы сможете наслаждаться каждым моментом жизни.