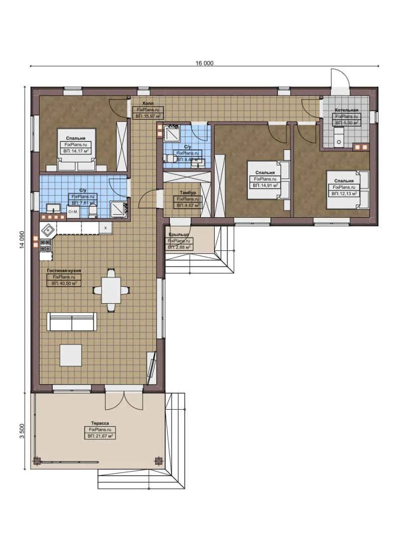
F-4463 - План одноэтажного дома 15 на 16, площадью 150 м² с террасой и 3 спальнями
| Параметр проекта | Значение |
|---|---|
| Длина | 14.09 м |
| Ширина | 16.00 м |
| Этажность | 1 |
| Общая площадь | 144.13 м² |
| Площадь застройки | 225.44 м² |
| Кол-во спален | 3 |
| Количество ванных комнат | 2 |
| Стиль проекта | Современный |
| Материал стен | Газобетон |
| Тип кровли | Плоская кровля |
| Наличие цокольного этажа | Нет |
| Наличие гаража | Нет |
| Машиноместа | - |
| Чердак | Нет |
| Терраса | Да |
| Балкон | Нет |
| Второй свет | - |
| Сауна | Нет |
Одноэтажный дом площадью 150 м² — это идеальное решение для тех, кто ценит простор и удобство. Проект F-4463 предлагает современное жильё с продуманной планировкой.
Просторная планировка
Длина дома составляет 14,09 м, а ширина — 16 м. Это обеспечивает достаточно места для комфортного проживания большой семьи. Три спальни и две ванные комнаты создают оптимальные условия для всех членов семьи. Общая площадь внутренних помещений составляет 144,13 м², что позволяет реализовать любые дизайнерские идеи.
Материал стен и кровля
Стены дома выполнены из газобетона, что гарантирует высокую тепло- и звукоизоляцию. Плоская кровля обеспечивает надёжность конструкции и удобство при обустройстве кровли. Отсутствие цокольного этажа упрощает строительство и обслуживание здания.
Дополнительные возможности
Наличие террасы делает дом ещё более привлекательным. Терраса — отличное место для отдыха на свежем воздухе, проведения семейных вечеров или приёма гостей. Отсутствие балкона компенсируется просторной террасой, которая позволяет наслаждаться видами и свежим воздухом без необходимости выходить из дома.
Преимущества проекта
Проект F-4463 отличается продуманной планировкой, использованием качественных материалов и современными решениями. Современный стиль дома гармонично сочетается с функциональностью каждого элемента. Этот проект станет отличным выбором для тех, кто ищет комфортное жильё в современном стиле.