F-5120 - Планы двухэтажного дома 10 на 10, площадью 240 м² с террасой и 4 спальнями
| Параметр проекта | Значение |
|---|---|
| Длина | 10.00 м |
| Ширина | 10.00 м |
| Этажность | 2 |
| Общая площадь | 238.83 м² |
| Площадь застройки | 100.00 м² |
| Кол-во спален | 4 |
| Количество ванных комнат | 2 |
| Стиль проекта | Современный |
| Материал стен | Газобетон |
| Тип кровли | Плоская кровля |
| Наличие цокольного этажа | Нет |
| Наличие гаража | Нет |
| Машиноместа | - |
| Чердак | Нет |
| Терраса | Да |
| Балкон | Нет |
| Второй свет | - |
| Сауна | Нет |
Проект F-5120 представляет собой идеальный выбор для тех, кто мечтает о просторном и уютном доме. Двухэтажный дом площадью 240 м² станет отличным решением для вашей семьи. Благодаря продуманной планировке, каждый член семьи найдёт здесь своё место.
Современные материалы и стиль
Дом построен из газобетона — материала, который отличается высокой прочностью и долговечностью. Современный стиль проекта подчеркнёт ваш вкус и позволит создать уютное и гармоничное пространство.
Комфорт и функциональность
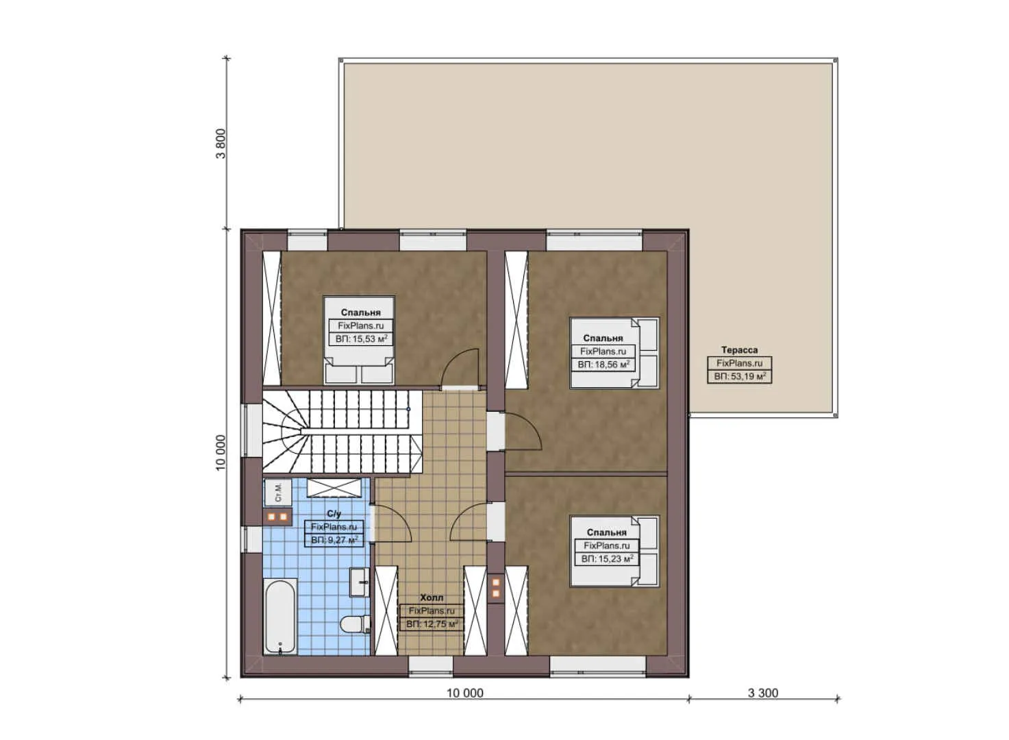
В доме предусмотрено четыре спальни, что обеспечит комфортное проживание для всей семьи. Две ванные комнаты сделают повседневную жизнь более удобной. Отсутствие гаража компенсируется наличием террасы — идеального места для отдыха на свежем воздухе. Плоская кровля придаёт дому современный вид и обеспечивает дополнительную надёжность конструкции.
Преимущества проекта F-5120
Проект F-5120 отличается продуманной планировкой, использованием современных материалов и функциональностью каждого элемента. Этот дом станет не только уютным жильём, но и источником гордости для его владельцев. Создайте свой идеальный дом с проектом F-5120!