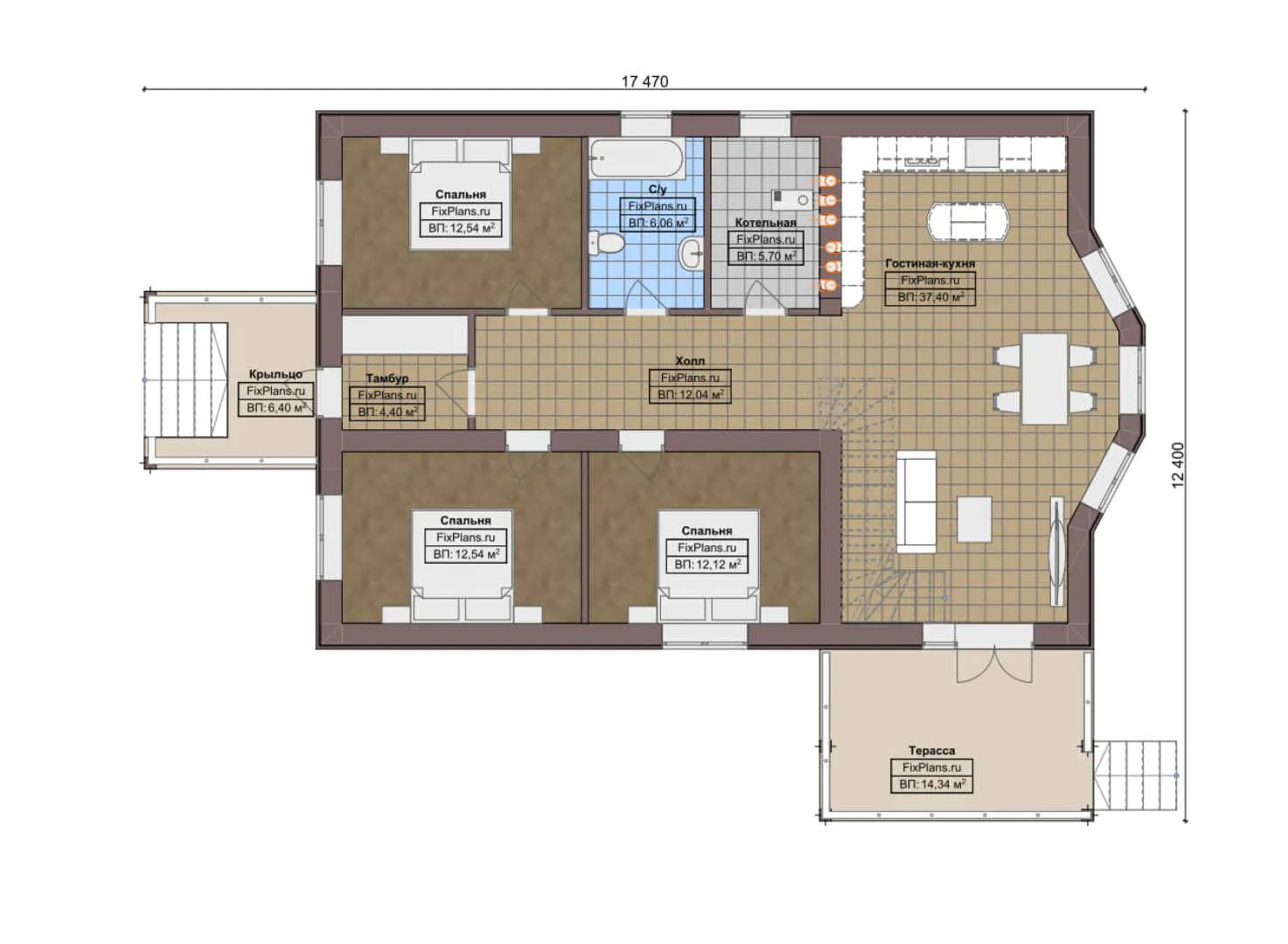
F-5255 - План одноэтажного дома 13 на 18, площадью 230 м² с террасой и 4 спальнями
| Параметр проекта | Значение |
|---|---|
| Длина | 12.40 м |
| Ширина | 17.47 м |
| Этажность | 1 |
| Общая площадь | 222.44 м² |
| Площадь застройки | 216.63 м² |
| Кол-во спален | 4 |
| Количество ванных комнат | 2 |
| Стиль проекта | Европейский |
| Материал стен | Керамический поризованный блок |
| Тип кровли | Скатная кровля |
| Наличие цокольного этажа | Нет |
| Наличие гаража | Нет |
| Машиноместа | - |
| Чердак | Да |
| Терраса | Да |
| Балкон | Нет |
| Второй свет | - |
| Сауна | Нет |
Проект одноэтажного дома F-5255 представляет собой просторное жилище площадью 230 м² с четырьмя спальнями. Этот дом идеально подходит для семей, которые ценят комфорт и удобство. Благодаря своим размерам, он обеспечивает достаточно места для всех членов семьи и гостей.
Европейский стиль
Дом выполнен в европейском стиле, что придаёт ему современный и элегантный вид. Использование керамического поризованного блока для стен обеспечивает надёжность конструкции и долговечность. Скатная кровля добавляет изысканности общему облику дома.
Практичность и функциональность
В доме предусмотрена терраса, где можно проводить время на свежем воздухе. Наличие чердака расширяет возможности использования пространства. Отсутствие гаража компенсируется общей просторностью и функциональностью планировки.
Преимущества проекта
Проект F-5255 отличается продуманной планировкой и качественными материалами. Общая площадь застройки составляет 216,63 м², что позволяет эффективно использовать каждый квадратный метр. Две ванные комнаты обеспечивают комфорт для всех членов семьи. Этот проект — отличный выбор для тех, кто ищет надёжное и комфортное жильё.