F-5264 - Планы дома с мансардой 19 на 23, площадью 390 м² с спортзалом и 5 спальнями
| Параметр проекта | Значение |
|---|---|
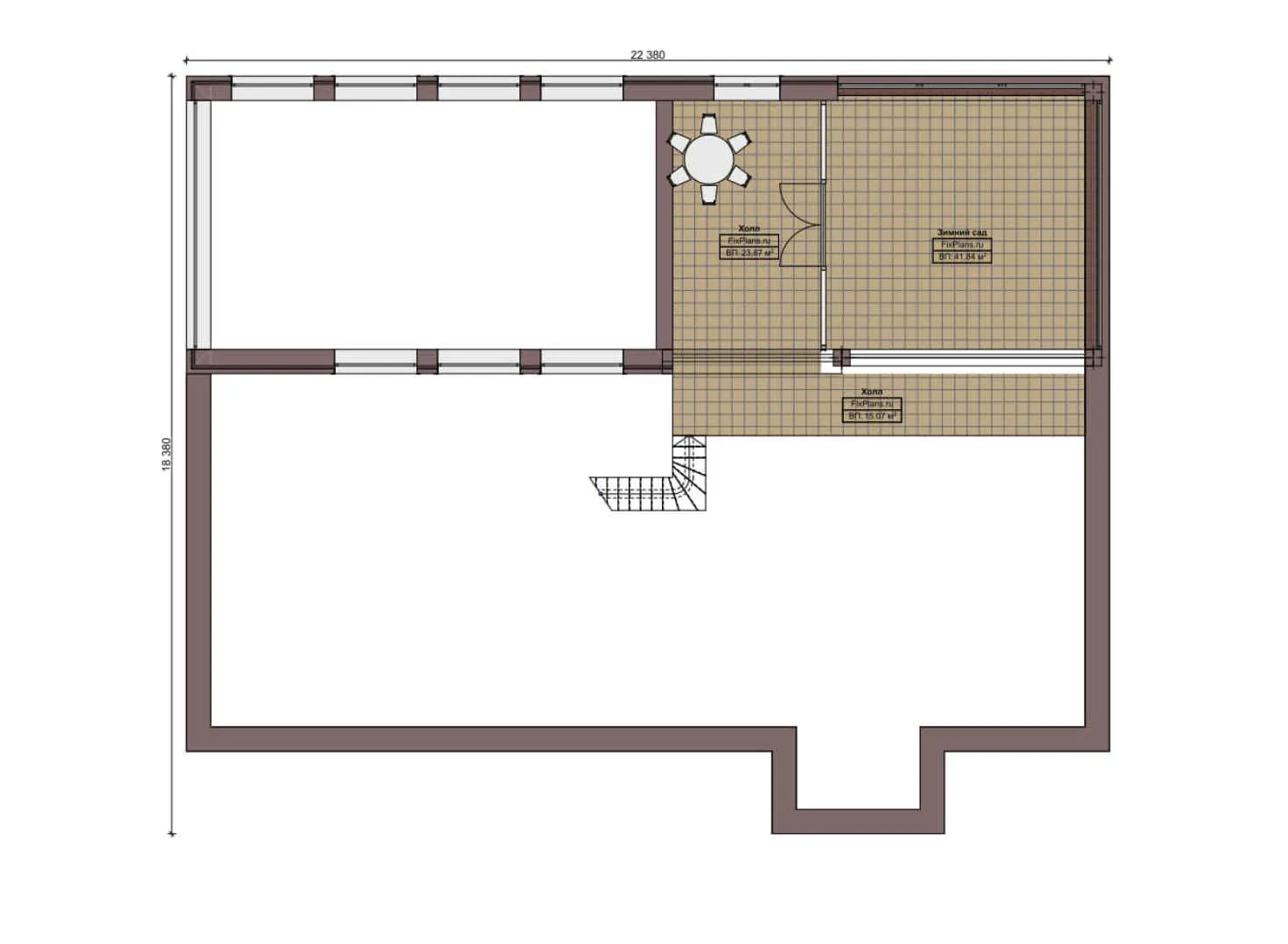
| Длина | 18.38 м |
| Ширина | 22.38 м |
| Этажность | 1.5 |
| Общая площадь | 390.25 м² |
| Площадь застройки | 411.34 м² |
| Кол-во спален | 5 |
| Количество ванных комнат | 3 |
| Стиль проекта | Европейский |
| Материал стен | Газобетон |
| Тип кровли | Скатная кровля |
| Наличие цокольного этажа | Нет |
| Наличие гаража | Нет |
| Машиноместа | - |
| Чердак | Нет |
| Терраса | Нет |
| Балкон | Нет |
| Второй свет | - |
| Сауна | Нет |
Проект F-5264 представляет собой идеальный выбор для тех, кто мечтает о просторном и уютном доме. Общая площадь в 390 м² позволяет реализовать самые смелые идеи по обустройству жилого пространства. Длина дома составляет 18,38 м, а ширина — 22,38 м, что обеспечивает достаточно места для комфортного проживания большой семьи.
Европейский стиль и комфорт
Дизайн проекта выполнен в европейском стиле, который отличается своей лаконичностью и функциональностью. Газобетонные стены обеспечивают отличную тепло- и звукоизоляцию, создавая комфортные условия для жизни. Скатная кровля придаёт дому элегантный вид и защищает от погодных условий.
Многофункциональность и удобство
В доме предусмотрено 5 спален и 3 ванные комнаты, что обеспечивает комфортное проживание для всей семьи. Отсутствие цокольного этажа и гаража позволяет оптимизировать пространство под другие нужды, например, обустроить дополнительные жилые зоны или спортивные помещения.
Дополнительные возможности
Особенностью проекта является наличие спортзала, который станет отличным местом для занятий спортом и поддержания здорового образа жизни. Отсутствие террасы и балкона не ограничивает функциональность дома, но при этом сохраняет его лаконичный и современный облик. Этот проект — идеальное решение для тех, кто ценит комфорт, функциональность и европейский стиль в архитектуре.