F-5327 - Планы двухэтажного дома 22 на 33, площадью 360 м² с террасой, баней, гаражом на 2 машины и 3 спальнями
| Параметр проекта | Значение |
|---|---|
| Длина | 32.02 м |
| Ширина | 21.58 м |
| Этажность | 2 |
| Общая площадь | 359.68 м² |
| Площадь застройки | 690.99 м² |
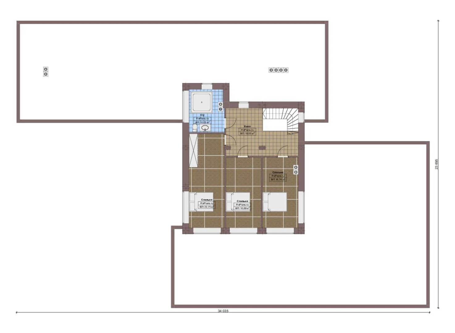
| Кол-во спален | 3 |
| Количество ванных комнат | 3 |
| Стиль проекта | Современный |
| Материал стен | Газобетон |
| Тип кровли | Плоская кровля |
| Наличие цокольного этажа | Нет |
| Наличие гаража | Да |
| Машиноместа | на 2 машины |
| Чердак | Нет |
| Терраса | Да |
| Балкон | Нет |
| Второй свет | - |
| Сауна | Да |
Проект F-5327 представляет собой двухэтажный дом площадью 360 м², который станет идеальным выбором для большой семьи. Просторные комнаты, три спальни и три ванные комнаты обеспечивают комфортное проживание для всех членов семьи. Современный стиль проекта гармонично сочетает в себе функциональность и эстетику.
Функциональность и практичность
Одним из главных преимуществ проекта является наличие гаража на две машины, что особенно актуально для жителей современных городов. Также предусмотрена терраса, где можно проводить время на свежем воздухе. Отсутствие чердака позволяет более рационально использовать пространство дома.
Материалы высокого качества
Дом построен из газобетона, который отличается высокой прочностью и долговечностью. Плоская кровля обеспечивает надёжность конструкции и удобство в обслуживании. Эти материалы гарантируют долгий срок службы здания и его устойчивость к различным погодным условиям.
Дополнительные удобства
В проекте предусмотрена сауна, которая станет отличным местом для отдыха и релаксации после напряжённого дня. Отсутствие балкона компенсируется наличием террасы, где можно устроить пикник или просто насладиться видом. Всё это делает проект F-5327 не только комфортным, но и функциональным решением для жизни.
Не упустите возможность воплотить свою мечту о просторном и уютном доме!