F-5912 - Планы дома с мансардой 11 на 13, площадью 210 м² с 3 спальнями
| Параметр проекта | Значение |
|---|---|
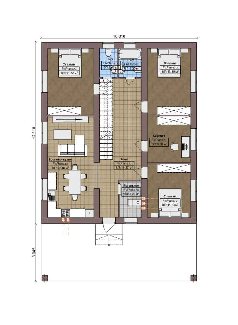
| Длина | 10.81 м |
| Ширина | 12.61 м |
| Этажность | 1.5 |
| Общая площадь | 206.46 м² |
| Площадь застройки | 136.31 м² |
| Кол-во спален | 3 |
| Количество ванных комнат | 2 |
| Стиль проекта | Европейский |
| Материал стен | Газобетон |
| Тип кровли | Скатная кровля |
| Наличие цокольного этажа | Нет |
| Наличие гаража | Нет |
| Машиноместа | - |
| Чердак | Нет |
| Терраса | Нет |
| Балкон | Нет |
| Второй свет | - |
| Сауна | Нет |
Проект дома F-5912 представляет собой отличное решение для тех, кто ищет уютное и просторное жильё. Этот проект отличается продуманной планировкой и функциональностью каждого квадратного метра.
Простор и комфорт
Общая площадь проекта составляет 206,46 м², что обеспечивает достаточно места для комфортного проживания семьи. Три спальни и две ванные комнаты делают этот дом идеальным выбором для семейного уюта. Длина дома — 10,81 м, ширина — 12,61 м, а этажность — 1,5 этажа.
Материал и конструкция
Стены дома выполнены из газобетона, что обеспечивает отличную теплоизоляцию и долговечность конструкции. Скатная кровля придаёт дому современный вид и защищает от погодных условий. Отсутствие цокольного этажа упрощает строительство и обслуживание дома.
Особенности проекта
Проект F-5912 выполнен в европейском стиле, который сочетает в себе элегантность и практичность. Отсутствие террасы, балкона и второго света делает проект более универсальным и подходящим для различных климатических условий. Однако это не умаляет его привлекательности — дом остаётся комфортным и уютным местом для жизни.
Преимущества проекта
Выбирая этот проект, вы получаете не только комфортное жильё, но и уверенность в качестве строительства. Газобетонные стены обеспечивают отличную теплоизоляцию, а продуманная планировка позволяет максимально эффективно использовать каждый метр площади. Оставьте заявку на сайте и узнайте больше о проекте F-5912 — ваш идеальный дом ждёт вас!