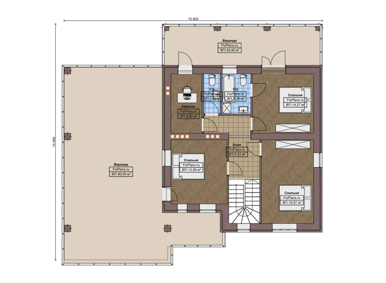
F-6164 - Планы двухэтажного дома 15 на 16, площадью 330 м² с террасой, гаражом на 2 машины и 4 спальнями
| Параметр проекта | Значение |
|---|---|
| Длина | 15.95 м |
| Ширина | 14.79 м |
| Этажность | 2 |
| Общая площадь | 330.30 м² |
| Площадь застройки | 235.90 м² |
| Кол-во спален | 4 |
| Количество ванных комнат | 4 |
| Стиль проекта | Современный |
| Материал стен | Газобетон |
| Тип кровли | Плоская кровля |
| Наличие цокольного этажа | Нет |
| Наличие гаража | Да |
| Машиноместа | на 2 машины |
| Чердак | Нет |
| Терраса | Да |
| Балкон | Нет |
| Второй свет | - |
| Сауна | Нет |
Представляем вам проект двухэтажного дома площадью 330 м² с террасой, гаражом на две машины и четырьмя спальнями. Этот дом станет идеальным решением для вашей семьи, обеспечивая комфортное проживание в современном стиле.
Функциональность и практичность
Благодаря продуманной планировке, каждый член семьи найдёт своё уютное место. Четыре спальни и четыре ванные комнаты гарантируют комфорт и удобство для всех жильцов. Отсутствие чердака позволяет максимально эффективно использовать пространство дома.
Современные материалы и надёжность
Стены из газобетона обеспечивают отличную тепло- и звукоизоляцию, делая дом не только комфортным, но и энергоэффективным. Плоская кровля — это практичное решение, которое упрощает обслуживание крыши и придаёт дому современный вид.
Дополнительные удобства
Наличие террасы позволяет наслаждаться свежим воздухом и красивыми видами прямо у себя дома. Отсутствие балкона компенсируется наличием гаража, где можно разместить два автомобиля. Этот проект сочетает в себе все необходимые элементы для комфортной жизни: от просторных комнат до практичных решений для хранения.
Не упустите возможность создать дом своей мечты! Оставьте заявку на сайте и получите более подробную информацию о проекте двухэтажного дома 15 на 16.