F-6704 - Планы двухэтажного дома 15 на 15, площадью 270 м² с балконом и 5 спальнями
| Параметр проекта | Значение |
|---|---|
| Длина | 14.43 м |
| Ширина | 14.43 м |
| Этажность | 2 |
| Общая площадь | 264.97 м² |
| Площадь застройки | 208.22 м² |
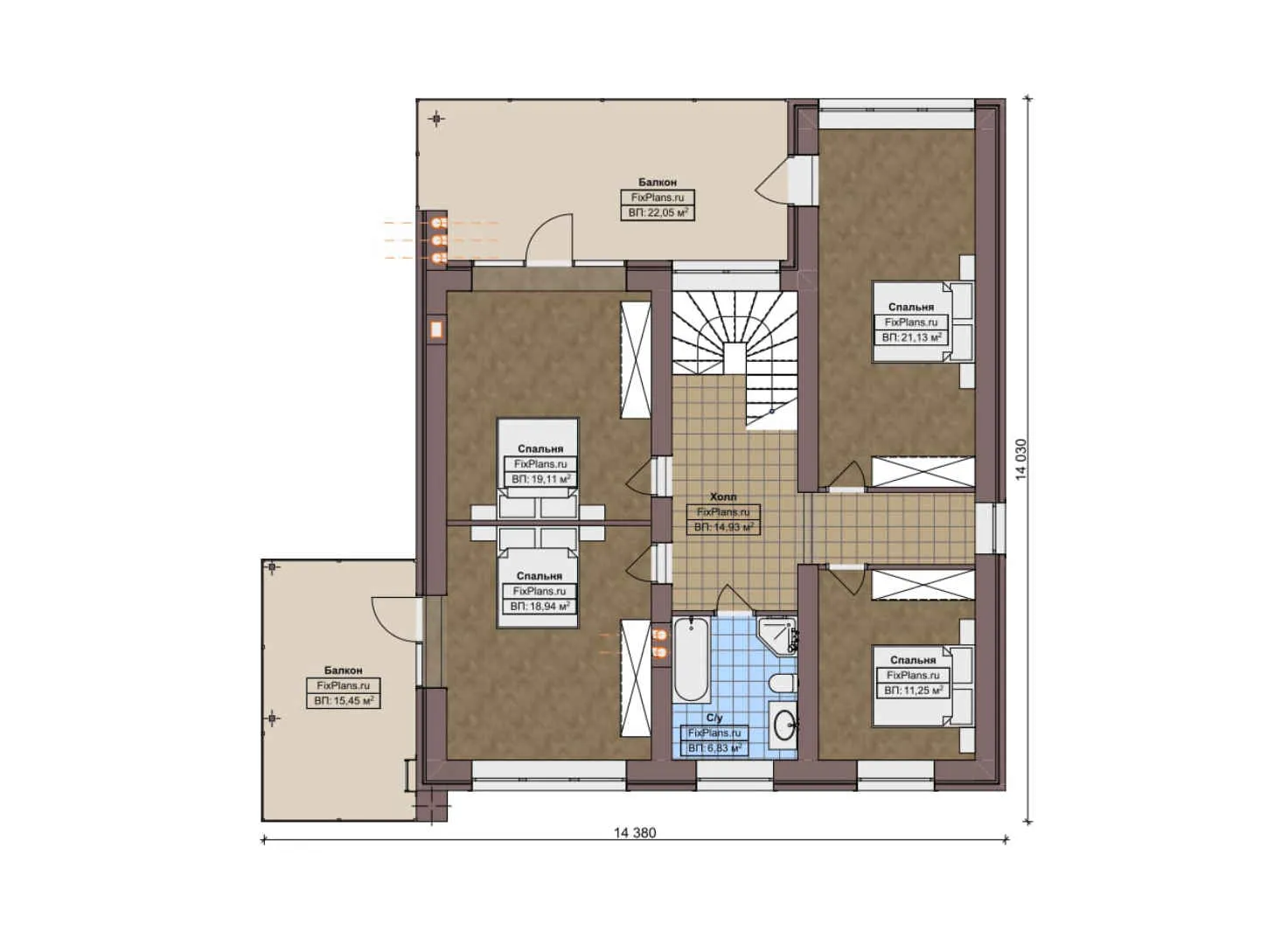
| Кол-во спален | 5 |
| Количество ванных комнат | 3 |
| Стиль проекта | Современный |
| Материал стен | Газобетон |
| Тип кровли | Плоская кровля |
| Наличие цокольного этажа | Нет |
| Наличие гаража | Нет |
| Машиноместа | - |
| Чердак | Нет |
| Терраса | Нет |
| Балкон | Да |
| Второй свет | - |
| Сауна | Нет |
Проект F-6704 представляет собой двухэтажный дом площадью 270 м² с пятью спальнями. Это идеальный выбор для семей, которые ценят простор и комфорт. Благодаря продуманной планировке каждый член семьи найдёт своё уютное место.
Современные материалы и надёжность конструкции
Дом построен из газобетона — материала, который обеспечивает отличную тепло- и звукоизоляцию. Плоская кровля гарантирует долговечность и устойчивость к различным погодным условиям. Отсутствие цокольного этажа упрощает обслуживание дома, делая его более практичным решением для жизни.
Функциональность и удобство
В проекте предусмотрены три ванные комнаты, что особенно удобно для больших семей. Наличие балкона добавляет дополнительное пространство для отдыха и наслаждения видами. Отсутствие террасы компенсируется наличием балкона, который может стать любимым местом для утреннего кофе или вечерних прогулок.
Практичность без компромиссов
Отсутствие гаража не является недостатком, так как проект ориентирован на создание комфортного жилого пространства внутри дома. Проект F-6704 — это современное решение для тех, кто ценит качество и практичность в каждом элементе своего жилища. Создайте дом своей мечты с проектом F-6704!