F-6803 - Планы двухэтажного дома 15 на 16, площадью 250 м² с террасой, гаражом на 1 машину и 4 спальнями
| Параметр проекта | Значение |
|---|---|
| Длина | 15.38 м |
| Ширина | 14.28 м |
| Этажность | 2 |
| Общая площадь | 248.08 м² |
| Площадь застройки | 219.63 м² |
| Кол-во спален | 4 |
| Количество ванных комнат | 2 |
| Стиль проекта | Европейский |
| Материал стен | Газобетон |
| Тип кровли | Скатная кровля |
| Наличие цокольного этажа | Нет |
| Наличие гаража | Да |
| Машиноместа | на 1 машину |
| Чердак | Да |
| Терраса | Да |
| Балкон | Нет |
| Второй свет | - |
| Сауна | Нет |
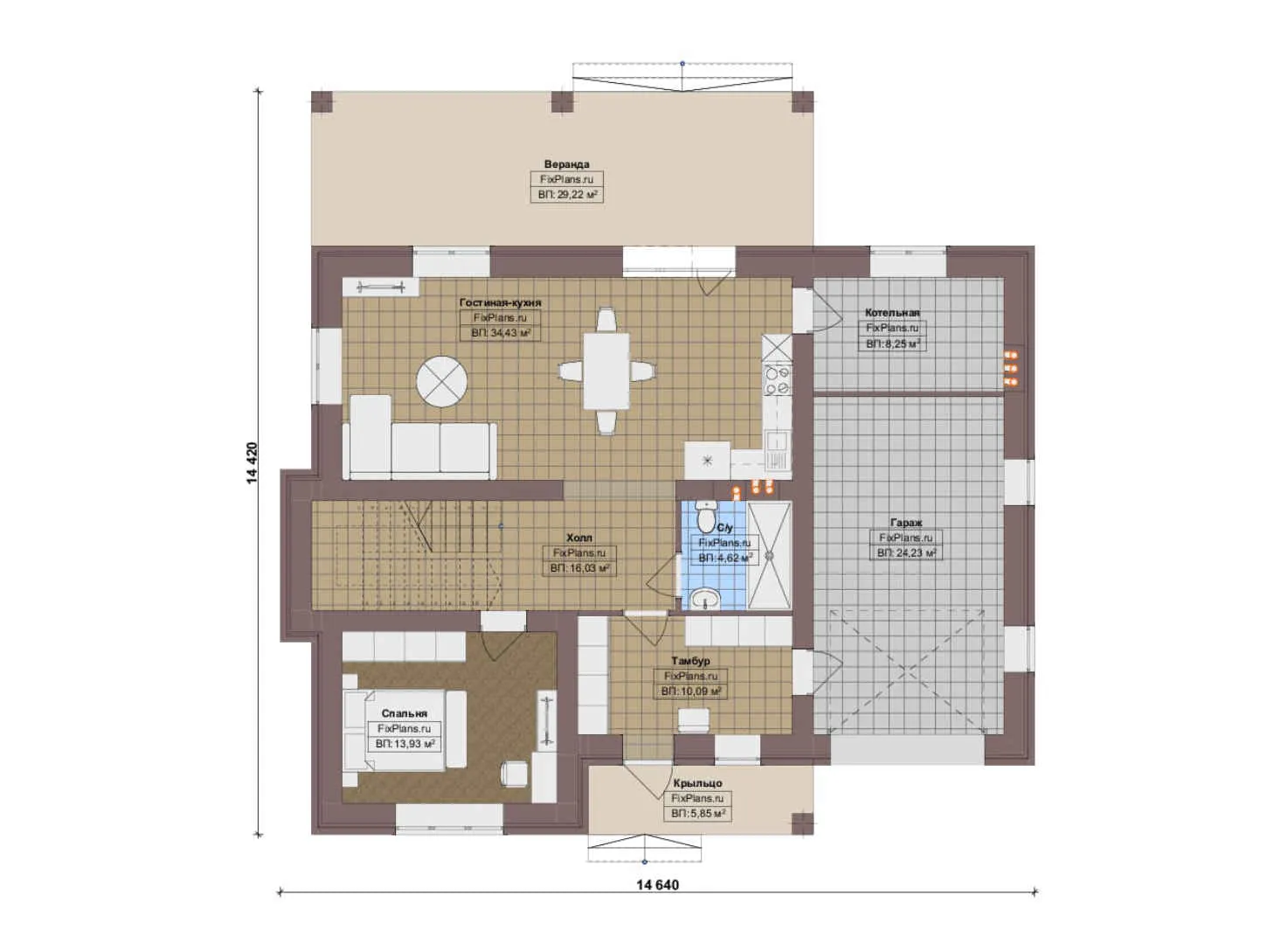
Проект F-6803 представляет собой двухэтажный дом площадью 250 м² с продуманной планировкой. Дом имеет длину 15,38 м и ширину 14,28 м, что обеспечивает достаточно места для комфортного проживания большой семьи. Четыре спальни и две ванные комнаты делают этот проект идеальным выбором для семей с детьми или тех, кто ценит простор и комфорт.
Европейский стиль и надёжные материалы
Дизайн дома выполнен в европейском стиле, который отличается своей элегантностью и функциональностью. Стены из газобетона обеспечивают отличную теплоизоляцию и долговечность конструкции. Скатная кровля защищает дом от атмосферных осадков и придаёт ему завершённый вид.
Практичность и удобство
Наличие гаража на одно машиноместо упрощает решение вопроса с парковкой автомобиля. Терраса станет прекрасным местом для отдыха на свежем воздухе, а чердак предоставляет дополнительные возможности для хранения вещей или организации пространства под личные нужды. Отсутствие цокольного этажа позволяет оптимизировать пространство и сделать дом более светлым и просторным.
Преимущества проекта F-6803
Проект двухэтажного дома F-6803 — это не только комфортное жильё, но и продуманное решение для тех, кто ценит практичность и удобство. Просторная планировка, надёжные материалы и стильный дизайн делают этот проект привлекательным выбором для строительства вашего будущего дома.