F-7109 - Планы двухэтажного дома 14 на 16, площадью 270 м² с террасой, балконом и 6 спальнями
| Параметр проекта | Значение |
|---|---|
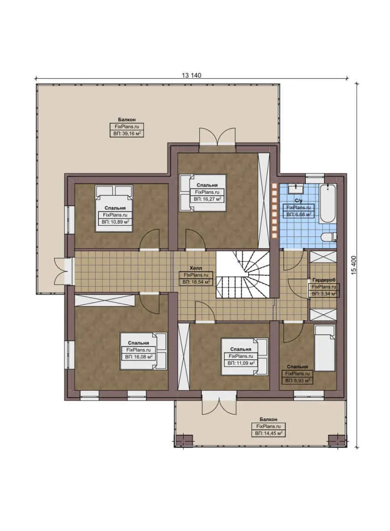
| Длина | 15.40 м |
| Ширина | 13.14 м |
| Этажность | 2 |
| Общая площадь | 263.98 м² |
| Площадь застройки | 202.36 м² |
| Кол-во спален | 6 |
| Количество ванных комнат | 2 |
| Стиль проекта | Европейский |
| Материал стен | Газобетон |
| Тип кровли | Скатная кровля |
| Наличие цокольного этажа | Нет |
| Наличие гаража | Нет |
| Машиноместа | - |
| Чердак | Да |
| Терраса | Да |
| Балкон | Да |
| Второй свет | - |
| Сауна | Нет |
Проект двухэтажного дома F-7109 представляет собой прекрасное решение для семей, ценящих простор и комфорт. Общая площадь в 270 м² позволяет разместить все необходимые помещения, а также создать уютную атмосферу для отдыха и развлечений.
Шесть спален — для каждого члена семьи своё пространство
Одним из ключевых преимуществ этого проекта является наличие шести спален. Это идеальное решение для больших семей или тех, кто ценит личное пространство. Каждая спальня обеспечивает комфорт и уединение, что особенно важно в современном ритме жизни.
Европейский стиль — гармония и элегантность
Дизайн дома выполнен в европейском стиле, который характеризуется гармонией и элегантностью. Этот стиль создаёт атмосферу уюта и спокойствия, позволяя забыть о повседневных заботах.
Дополнительные удобства: терраса и балкон
Проект также включает террасу и балкон, которые становятся отличным местом для отдыха на свежем воздухе. Терраса идеально подходит для семейных посиделок или вечеринок с друзьями, а балкон — для утреннего кофе или вечерних прогулок.
Не упустите возможность создать дом своей мечты! Оставьте заявку на этом сайте и получите подробную информацию о проекте F-7109.