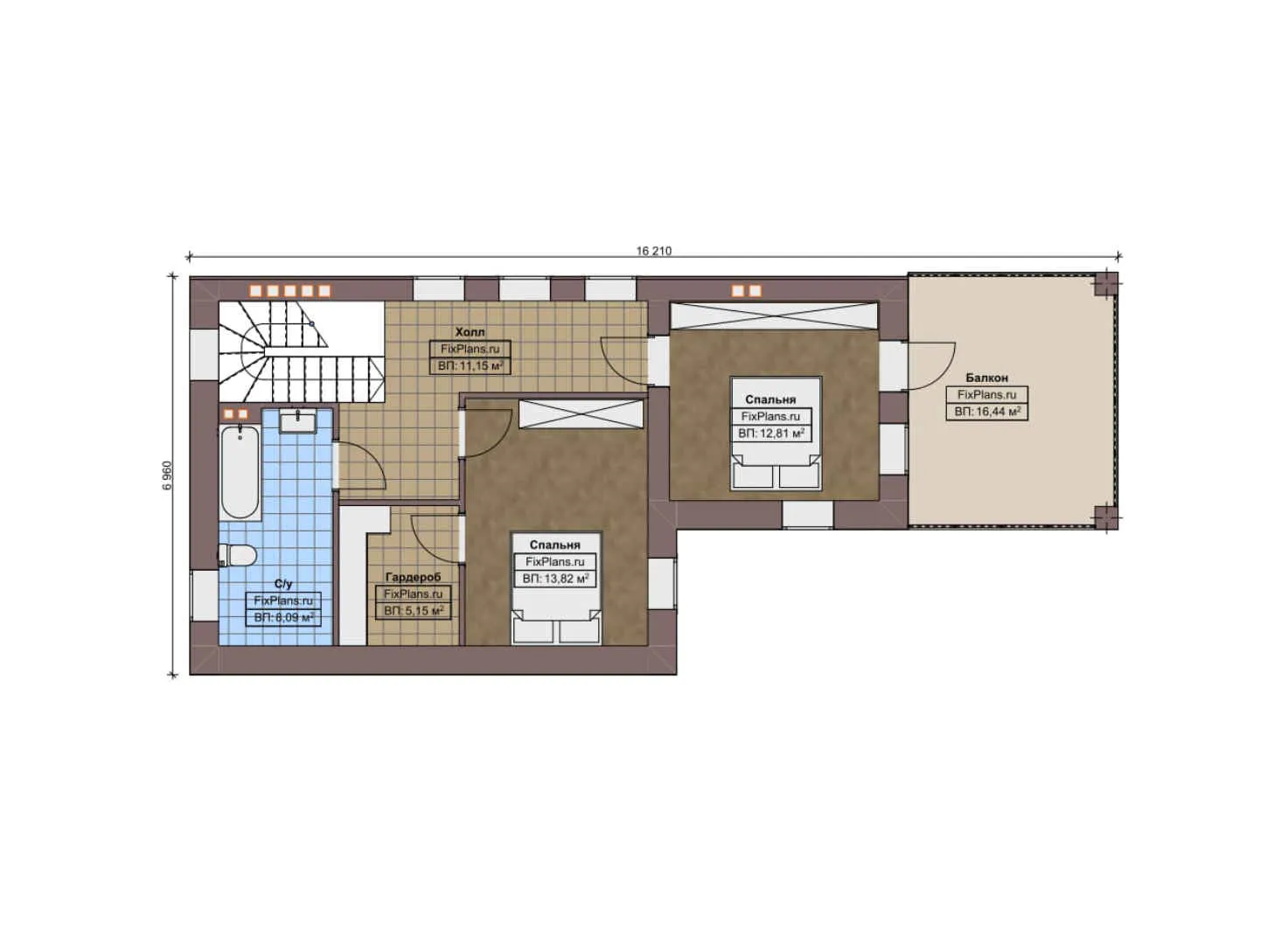
F-7379 - Планы дома с мансардой 11 на 17, площадью 180 м² с балконом и 3 спальнями
| Параметр проекта | Значение |
|---|---|
| Длина | 16.21 м |
| Ширина | 10.56 м |
| Этажность | 1.5 |
| Общая площадь | 175.95 м² |
| Площадь застройки | 171.23 м² |
| Кол-во спален | 3 |
| Количество ванных комнат | 2 |
| Стиль проекта | Европейский |
| Материал стен | Газобетон |
| Тип кровли | Скатная кровля |
| Наличие цокольного этажа | Нет |
| Наличие гаража | Нет |
| Машиноместа | - |
| Чердак | Нет |
| Терраса | Нет |
| Балкон | Да |
| Второй свет | - |
| Сауна | Нет |
Ищете проект дома, который сочетает в себе функциональность и эстетику? Представляем вам F-7379 — проект дома с мансардой размером 11 на 17 метров, площадью 180 м² с балконом и тремя спальнями. Этот дом станет идеальным решением для вашей семьи.
Простор и комфорт
Общая площадь проекта составляет 175,95 м², что обеспечивает достаточно места для комфортного проживания. Три спальни и две ванные комнаты создают удобное пространство для всей семьи. Мансарда добавляет дополнительный объём и функциональность, позволяя реализовать различные дизайнерские решения.
Материалы и конструкция
Стены дома выполнены из газобетона, что гарантирует высокую прочность и долговечность конструкции. Скатная кровля защищает дом от атмосферных осадков, обеспечивая надёжность и устойчивость здания. Отсутствие цокольного этажа упрощает строительство и снижает затраты на возведение фундамента.
Дополнительные возможности
Наличие балкона позволяет наслаждаться живописными видами и свежим воздухом в любое время года. Отсутствие террасы компенсируется наличием балкона, который может стать местом для отдыха или хранения вещей. Проект не предусматривает наличие гаража, однако это не мешает обустроить удобное парковочное место рядом с домом.
Стиль и индивидуальность
Европейский стиль проекта придаёт дому современный и элегантный вид. Вы можете адаптировать дизайн под свои предпочтения, добавив элементы декора и интерьера, которые подчеркнут вашу индивидуальность. F-7379 — это не просто проект дома, это возможность создать уютное и комфортное пространство для жизни.