F-7838 - Планы двухэтажного дома 11 на 19, площадью 350 м² с террасой, балконом, гаражом на 2 машины и 4 спальнями
| Параметр проекта | Значение |
|---|---|
| Длина | 10.11 м |
| Ширина | 18.11 м |
| Этажность | 2 |
| Общая площадь | 344.02 м² |
| Площадь застройки | 183.09 м² |
| Кол-во спален | 4 |
| Количество ванных комнат | 2 |
| Стиль проекта | Европейский |
| Материал стен | Газобетон |
| Тип кровли | Скатная кровля |
| Наличие цокольного этажа | Нет |
| Наличие гаража | Да |
| Машиноместа | на 2 машины |
| Чердак | Да |
| Терраса | Да |
| Балкон | Да |
| Второй свет | - |
| Сауна | Нет |
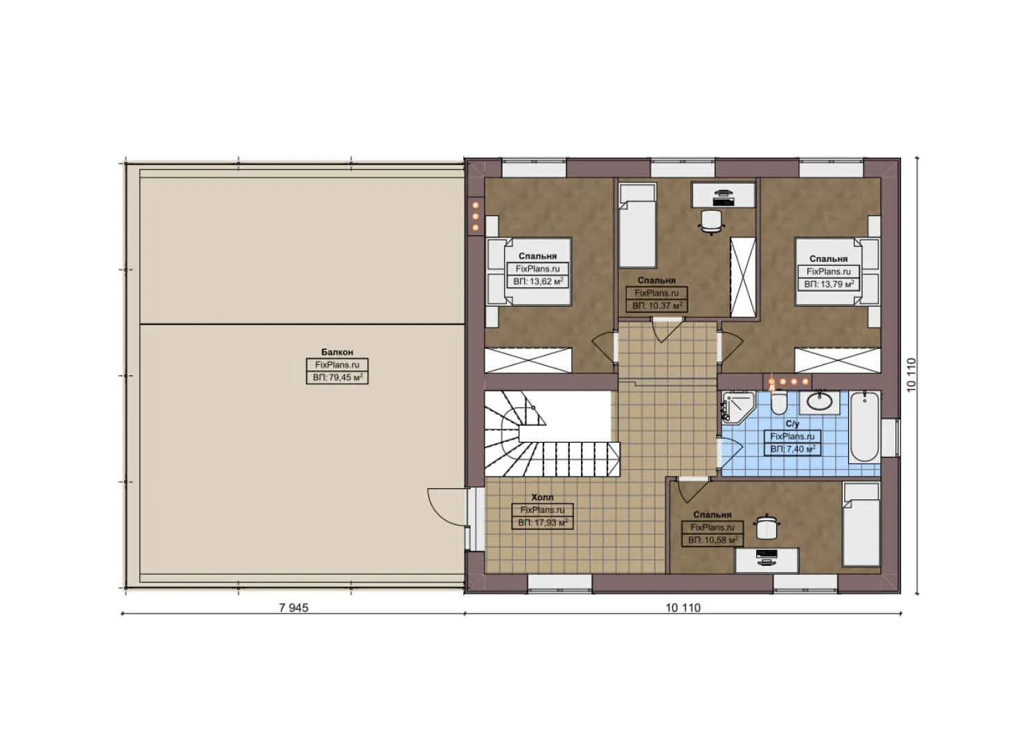
Представляем вам проект двухэтажного дома площадью 350 м² с террасой, балконом и гаражом на две машины. Этот дом станет идеальным решением для большой семьи, которая ценит простор и комфорт. Благодаря своей площади, в доме можно разместить все необходимые помещения и создать уютное пространство для жизни.
Функциональность и практичность
В проекте предусмотрены четыре спальни и две ванные комнаты, что обеспечивает комфортное проживание для всех членов семьи. Наличие террасы и балкона позволяет наслаждаться свежим воздухом и красивыми видами в любое время года. Гараж на две машины гарантирует безопасность и удобство хранения вашего транспорта.
Европейский стиль и надёжность
Проект выполнен в европейском стиле, который отличается своей лаконичностью и функциональностью. Стены дома изготовлены из газобетона, что обеспечивает высокую прочность и долговечность конструкции. Скатная кровля защищает дом от атмосферных осадков и придаёт ему завершённый вид.
Дополнительные возможности
В доме также предусмотрен чердак, где можно разместить дополнительные помещения или хранить вещи. Наличие второго света позволяет создать светлое и просторное пространство внутри дома. Хотя в проекте нет сауны, это не мешает наслаждаться комфортом и уютом этого замечательного дома.
Не упустите возможность воплотить свои мечты о собственном доме! Оставьте заявку на сайте и получите подробную информацию о проекте.