F-8108 - Планы двухэтажного дома 15 на 16, площадью 190 м² с гаражом на 2 машины и 4 спальнями
| Параметр проекта | Значение |
|---|---|
| Длина | 14.62 м |
| Ширина | 15.04 м |
| Этажность | 2 |
| Общая площадь | 186.35 м² |
| Площадь застройки | 219.88 м² |
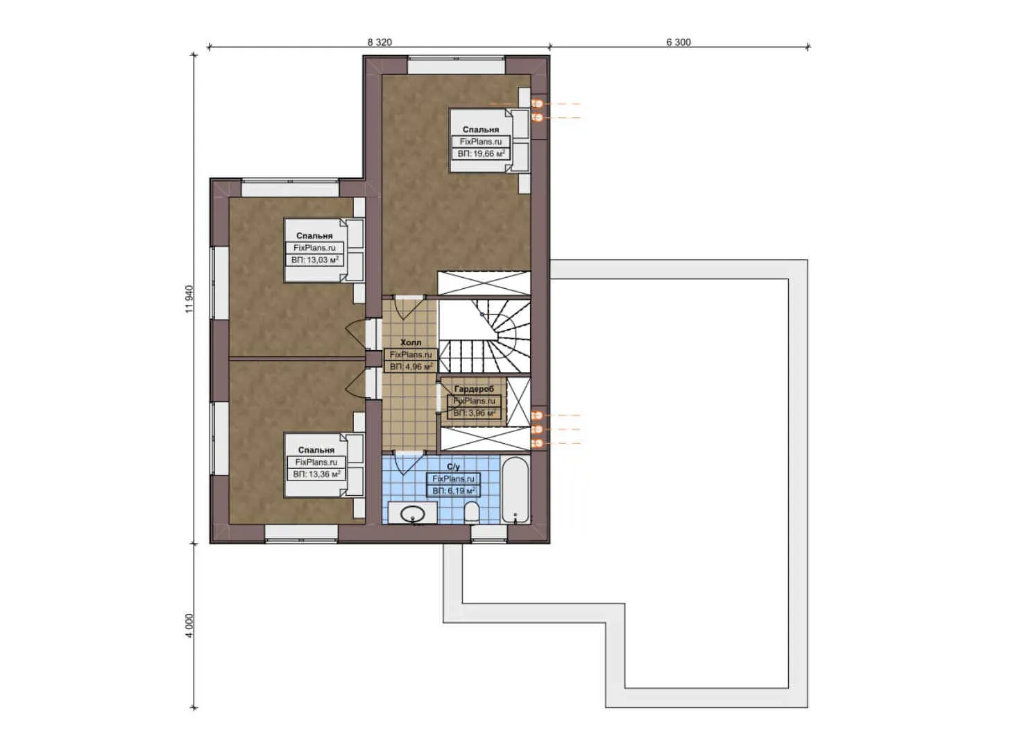
| Кол-во спален | 4 |
| Количество ванных комнат | 2 |
| Стиль проекта | Современный |
| Материал стен | Газобетон |
| Тип кровли | Плоская кровля |
| Наличие цокольного этажа | Нет |
| Наличие гаража | Да |
| Машиноместа | на 2 машины |
| Чердак | Нет |
| Терраса | Нет |
| Балкон | Нет |
| Второй свет | - |
| Сауна | Нет |
Проект двухэтажного дома F-8108 представляет собой отличное решение для семей, ценящих простор и комфорт. Общая площадь в 190 м² позволяет разместить все необходимые помещения, а также создать уютную атмосферу для отдыха и развлечений.
Функциональность и практичность
Дом оснащён всем необходимым для комфортной жизни: четыре спальни, две ванные комнаты, гараж на две машины. Это делает проект идеальным выбором для семей с детьми или тех, кто ценит удобство хранения автомобилей. Газобетонные стены обеспечивают надёжность и долговечность конструкции, а плоская кровля гарантирует устойчивость к различным погодным условиям.
Современный стиль и практичность
Современный стиль проекта подчёркивает его актуальность и универсальность. Отсутствие цокольного этажа позволяет сэкономить пространство и использовать его более рационально. Отсутствие террасы и балкона компенсируется внутренним пространством дома, которое можно обустроить по своему вкусу.
Преимущества проекта F-8108
Проект F-8108 отличается продуманной планировкой и функциональностью каждого элемента. Благодаря своей площади и количеству комнат, дом идеально подходит для большой семьи или тех, кто хочет иметь дополнительное пространство для гостей. Не упустите возможность стать обладателем этого замечательного дома!